White
White

Projekt domu ARCHON+ Dom w klematisach 17 (R2)

więcej o projekcie Dom w klematisach 17 (R2) na archon.pl »
Dom dwurodzinny (jednorodzinny dwulokalowy) z poddaszem użytkowym
garaż, 8 pokoi, 2 kuchnie, 2 łazienki, WC, kotłownia, garderoby, kominek,
PARAMETRY TECHNICZNE
Powierzchnia domu
bez kotłowni, garażu
199,52 m2
Powierzchnia kotłowni 8,18 m2
Powierzchnia garażu 34,10 m2
Min. wymiary działki [i] 23,91x19,80 m
* po adaptacji [i] 21,91x19,80 m
Kubatura 1 170,09 m3
Powierzchnia zabudowy 175,60 m2
Powierzchnia użytkowa [i] 189,92 m2
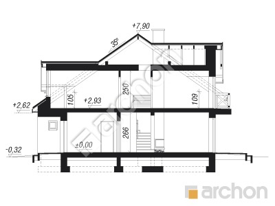
Wysokość 8,22 m
TECHNOLOGIA I KONSTRUKCJA:
ściany zewnetrzne: pustak ceramiczny Porotherm 25 cm, styropian 20 cm, tynk
strop: płyta żelbetowa
ścianka kolankowa: 109 cm
dach: dwuspadowy, nachylenie 35 st , więźba drewniana, dachówka ceramiczna



CENA PROJEKTU:

8 040,00 zł

zamów na archon.pl
podyskutuj o projekcie Dom w klematisach 17 (R2)
Dom w klematisach 17 (R2)
PARTER 135,00 (136,78)
1. Wiatrołap 5,10
2. Garaż 17,05 (17,94)
3. Hol 4,30
4. Schody 2,16
5. Salon 24,98
6. Kuchnia 7,21
7. Kotłownia 4,09
8. Toaleta 2,61
9. Wiatrołap 5,10
10. Garaż 17,05 (17,94)
11. Hol 4,30
12. Schody 2,16
13. Salon 24,98
14. Kuchnia 7,21
15. Kotłownia 4,09
16. Toaleta 2,61
Dom w klematisach 17 (R2)
PODDASZE 106,80 (133,94)
1. Hol i schody 6,72
2. Pokój 10,56 (12,34)
3. Pokój 11,71 (13,78)
4. Łazienka 5,88
5. Garderoba 4,80 (7,40)
6. Pokój {z garderobą} 13,73 (20,85)
7. Hol i schody 6,72
8. Pokój 10,56 (12,34)
9. Pokój 11,71 (13,78)
10. Łazienka 5,88
11. Garderoba 4,80 (7,40)
12. Pokój {z garderobą} 13,73 (20,85)
White
White

Porozmawiaj o projekcie

comments powered by Disqus