White
White

Projekt domu ARCHON+ Dom w kortlandach (G2)

więcej o projekcie Dom w kortlandach (G2) na archon.pl »
Dom jednorodzinny parterowy z poddaszem użytkowym
garaż, strych, 5 pokoi, 1 kuchnia, 2 łazienki, spiżarka, kotłownia, pralnia, garderoby, kominek,
PARAMETRY TECHNICZNE
Powierzchnia domu
bez kotłowni, garażu, strychu
142,54 m2
Powierzchnia kotłowni 9,94 m2
Powierzchnia garażu 35,16 m2
Powierzchnia strychu 16,89 m2
Min. wymiary działki [i] 22,00x21,00 m
* po adaptacji [i] 21,00x21,00 m
Kubatura 1 052,22 m3
Powierzchnia zabudowy 157,49 m2
Powierzchnia użytkowa [i] 131,48 m2
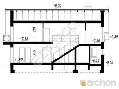
Wysokość 8,56 m
TECHNOLOGIA I KONSTRUKCJA:
ściany zewnetrzne: pustak ceramiczny Porotherm 25 cm, styropian 20 cm, tynk
strop: płyta żelbetowa
ścianka kolankowa: 116 cm
dach: dwuspadowy, nachylenie 38 st , więźba drewniana, dachówka ceramiczna



CENA PROJEKTU:

5 850,00 zł

zamów na archon.pl
podyskutuj o projekcie Dom w kortlandach (G2)
Dom w kortlandach (G2)
PARTER 116,67 (119,29)
1. Wiatrołap 6,03
2. Spiżarnia 1,79
3. Kuchnia 9,63
4. Salon + Jadalnia 34,56
5. Schody 4,05
6. Przedpokój 2,68 (5,29)
7. Pokój 8,86
8. Łazienka 3,97 (3,98)
9. Kotłownia 9,94
10. Garaż 35,16
Dom w kortlandach (G2)
PODDASZE 87,86 (119,06)
1. Hol i schody 9,69 (9,69)
2. Pokój 12,14 (14,30)
3. Garderoba 4,26 (5,75)
4. Pokój {z garderobą} 15,64 (20,73)
5. Pokój 14,37 (15,20)
6. Łazienka 9,86 (13,56)
7. Pralnia 5,01 (5,01)
8. Strych 16,89 (34,82)
White
White

Porozmawiaj o projekcie

comments powered by Disqus