White
White

Projekt domu ARCHON+ Dom w kaliach 5 (G2N)

więcej o projekcie Dom w kaliach 5 (G2N) na archon.pl »
Dom jednorodzinny parterowy z poddaszem użytkowym
garaż, 6 pokoi, 1 kuchnia, 3 łazienki, spiżarka, kotłownia, pralnia, garderoby, kominek,
PARAMETRY TECHNICZNE
Powierzchnia domu
bez kotłowni, garażu
221,31 m2
Powierzchnia kotłowni 12,45 m2
Powierzchnia garażu 33,01 m2
Min. wymiary działki [i] 28,32x19,62 m
* po adaptacji [i] 26,12x18,62 m
Kubatura 1 282,10 m3
Powierzchnia zabudowy 203,07 m2
Powierzchnia użytkowa [i] 194,60 m2
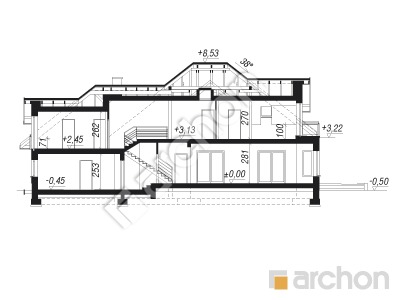
Wysokość 9,03 m
TECHNOLOGIA I KONSTRUKCJA:
ściany zewnetrzne: pustak ceramiczny Porotherm 25 cm, styropian 20 cm, tynk
strop: płyta żelbetowa
ścianka kolankowa: 100 cm
dach: czterospadowy, nachylenie 38 st , więźba drewniana, dachówka ceramiczna



CENA PROJEKTU:

6 590,00 zł

zamów na archon.pl
podyskutuj o projekcie Dom w kaliach 5 (G2N)
Dom w kaliach 5 (G2N)
PARTER 156,00 (158,14)
1. Wiatrołap 6,96
2. Hol 3,86
3. Łazienka 6,92
4. Pralnia 9,34 (11,48)
5. Garaż 33,01
6. Kotłownia 12,45
7. Gabinet 17,57
8. Salon + Jadalnia 49,90
9. Kuchnia 13,89
10. Spiżarnia 2,10
Dom w kaliach 5 (G2N)
PODDASZE 110,77 (156,11)
1. Schody 6,89
2. Pokój {z łazienką i garderobą} 16,84 (26,87)
3. Garderoba 2,63 (8,49)
4. Łazienka 3,70 (7,39)
5. Hol 9,48 (9,48)
6. Pokój {z garderobą} 16,43 (17,98)
7. Garderoba 6,12 (11,88)
8. Garderoba 3,12 (3,12)
9. Pokój {z garderobą} 19,40 (25,14)
10. Pokój {z garderobą} 15,86 (17,86)
11. Garderoba 3,40 (7,81)
12. Łazienka 6,90 (13,20)
White
White

Porozmawiaj o projekcie

comments powered by Disqus