White
White

Projekt domu ARCHON+ Dom w dąbrówkach (G2)

więcej o projekcie Dom w dąbrówkach (G2) na archon.pl »
Dom jednorodzinny z poddaszem użytkowym
garaż, strych, 5 pokoi, 1 kuchnia, 3 łazienki, spiżarka, kotłownia, garderoby, kominek,
PARAMETRY TECHNICZNE
Powierzchnia domu
bez kotłowni, garażu, strychu
151,67 m2
Powierzchnia kotłowni 6,67 m2
Powierzchnia garażu 38,71 m2
Powierzchnia strychu 8,94 m2
Min. wymiary działki [i] 21,62x22,12 m
* po adaptacji [i] 20,62x22,12 m
Kubatura 996,27 m3
Powierzchnia zabudowy 165,07 m2
Powierzchnia użytkowa [i] 145,80 m2
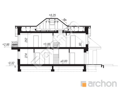
Wysokość 8,57 m
TECHNOLOGIA I KONSTRUKCJA:
ściany zewnetrzne: pustak ceramiczny Porotherm 25 cm, styropian 20 cm, tynk
strop: płyta żelbetowa
dach: czterospadowy, nachylenie 38 st , więźba drewniana, dachówka ceramiczna



CENA PROJEKTU:

5 950,00 zł

zamów na archon.pl
podyskutuj o projekcie Dom w dąbrówkach (G2)
Dom w dąbrówkach (G2)
PARTER 125,46 (129,08)
1. Wiatrołap 5,75
2. Hol 10,92
3. Salon + Jadalnia 31,94
4. Kuchnia 13,34
5. Spiżarnia 1,11
6. Łazienka 4,74
7. Pokój 12,28
8. Kotłownia 6,67
9. Garaż 38,71 (42,33)
Dom w dąbrówkach (G2)
PODDASZE 80,53 (127,62)
1. Schody 6,38
2. Hol 6,99
3. Pokój 13,10 (16,76)
4. Garderoba 2,82 (7,51)
5. Pokój {z garderobą} 13,07 (13,92)
6. Garderoba 1,94 (6,71)
7. Pokój {z łazienką i garderobą} 16,12 (17,91)
8. Łazienka 5,11 (11,04)
9. Łazienka 6,06 (8,70)
10. Strych ocieplony 8,94 (31,70)
White
White

Porozmawiaj o projekcie

comments powered by Disqus