White
White

Projekt domu ARCHON+ Dom w jeżówkach

więcej o projekcie Dom w jeżówkach na archon.pl »
Dom jednorodzinny parterowy z poddaszem użytkowym
7 pokoi, 1 kuchnia, 2 łazienki, spiżarka, kotłownia, garderoby, kominek,
PARAMETRY TECHNICZNE
Powierzchnia domu
bez kotłowni
148,52 m2
Powierzchnia kotłowni 5,22 m2
Min. wymiary działki [i] 21,32x18,12 m
* po adaptacji [i] 20,32x18,12 m
Kubatura 741,20 m3
Powierzchnia zabudowy 128,14 m2
Powierzchnia użytkowa [i] 140,84 m2
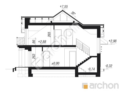
Wysokość 7,87 m
TECHNOLOGIA I KONSTRUKCJA:
ściany zewnetrzne: pustak ceramiczny Porotherm 25 cm, styropian 20 cm, tynk
strop: płyta żelbetowa
ścianka kolankowa: 86 cm
dach: czterospadowy, nachylenie 35 st , więźba drewniana, dachówka ceramiczna



CENA PROJEKTU:

5 420,00 zł

zamów na archon.pl
podyskutuj o projekcie Dom w jeżówkach
Dom w jeżówkach
PARTER 94,09 (96,39)
1. Wiatrołap 3,40
2. Hol 12,96
3. Gabinet 10,38
4. Kotłownia 5,22
5. Łazienka 3,49
6. Pokój 9,25
7. Schowek 2,70 (5,00)
8. Schody 5,41
9. Salon 29,17
10. Kuchnia 10,55
11. Spiżarnia 1,56
Dom w jeżówkach
PODDASZE 59,65 (93,23)
1. Hol 8,81 (8,81)
2. Garderoba 3,42 (5,60)
3. Pokój {z garderobą} 9,92 (16,61)
4. Pokój 9,63 (16,32)
5. Pokój 11,90 (13,08)
6. Pokój 8,50 (17,53)
7. Łazienka 7,47 (15,28)
White
White

Porozmawiaj o projekcie

comments powered by Disqus