White
White

Projekt domu ARCHON+ Dom przy plantach 9

więcej o projekcie Dom przy plantach 9 na archon.pl »
Budynek wielorodzinny piętrowy
PARAMETRY TECHNICZNE
Kubatura 2 459,98 m3
Powierzchnia zabudowy 239,96 m2
Powierzchnia użytkowa [i] 493,50 m2
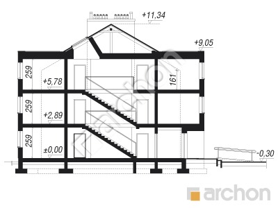
Wysokość 11,64 m
TECHNOLOGIA I KONSTRUKCJA:
ściany zewnetrzne: pustak ceramiczny Porotherm 25 cm, styropian 15 cm, tynk
strop: płyta żelbetowa
ścianka kolankowa: 161 cm
dach: dwuspadowy, nachylenie 30 st , więźba drewniana, blacha
W budynku zaprojektowano 5 mieszkań 3-pokojowych o powierzchni około 48 m2 oraz 7 mieszkań 2-pokojowych o powierzchni około 37 m2.



CENA PROJEKTU:

34 000,00 zł

zamów na archon.pl
podyskutuj o projekcie Dom przy plantach 9
Dom przy plantach 9
PARTER 182,23 (185,82)
1. Wiatrołap 5,50
2. Klatka schodowa 17,24 (20,83)
3. Mieszkanie 37,12
4. Mieszkanie 37,18
5. Mieszkanie 47,60
6. Mieszkanie 37,59
Dom przy plantach 9
PIĘTRO 189,03
1. Klatka schodowa 21,21
2. Mieszkanie 36,74
3. Mieszkanie 36,75
4. Mieszkanie 47,17
5. Mieszkanie 47,16
Dom przy plantach 9
PODDASZE 187,73 (189,36)
1. Klatka schodowa 21,54 (21,54)
2. Mieszkanie 36,34 (36,74)
3. Mieszkanie 36,34 (36,75)
4. Mieszkanie 46,76 (47,17)
5. Mieszkanie 46,75 (47,16)
White
White

Porozmawiaj o projekcie

comments powered by Disqus