White
White

Projekt domu ARCHON+ Dom w rezedach

więcej o projekcie Dom w rezedach na archon.pl »
Dom jednorodzinny z poddaszem użytkowym
garaż, 5 pokoi, 1 kuchnia, 2 łazienki, kotłownia, pralnia, kominek,
PARAMETRY TECHNICZNE
Powierzchnia domu
bez kotłowni, garażu
105,51 m2
Powierzchnia kotłowni 6,03 m2
Powierzchnia garażu 20,40 m2
Min. wymiary działki [i] 21,52x16,82 m
* po adaptacji [i] 20,52x16,12 m
Kubatura 659,95 m3
Powierzchnia zabudowy 110,44 m2
Powierzchnia użytkowa [i] 103,10 m2
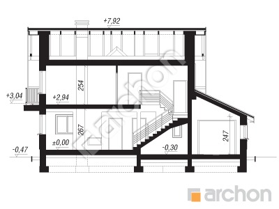
Wysokość 8,39 m
TECHNOLOGIA I KONSTRUKCJA:
ściany zewnetrzne: pustak ceramiczny Porotherm 25 cm, styropian 20 cm, tynk
strop: płyta żelbetowa
ścianka kolankowa: 108 cm
dach: dwuspadowy, nachylenie 42 st , I 25 st , więźba drewniana, dachówka ceramiczna



CENA PROJEKTU:

4 990,00 zł

zamów na archon.pl
podyskutuj o projekcie Dom w rezedach
Dom w rezedach
PARTER 82,86 (84,96)
1. Wiatrołap 2,90
2. Hol 4,21
3. Kuchnia 9,52
4. Salon 24,14
5. Pokój 9,27
6. Schody 3,23
7. Łazienka 3,16
8. Kotłownia 6,03 (8,13)
9. Garaż 20,40
Dom w rezedach
PODDASZE 49,08 (60,49)
1. Pralnia 2,41 (2,99)
2. Hol i schody 6,19 (6,19)
3. Pokój 9,85 (13,38)
4. Pokój 14,40 (17,92)
5. Pokój 11,73 (14,37)
6. Łazienka 4,50 (5,64)
White
White

Porozmawiaj o projekcie

comments powered by Disqus