White
White

Projekt domu ARCHON+ Dom w klematisach

więcej o projekcie Dom w klematisach na archon.pl »
Dom do zabudowy szeregowej z poddaszem użytkowym
garaż, 5 pokoi, 1 kuchnia, 1 łazienka, WC, kotłownia, kominek,
PARAMETRY TECHNICZNE
Powierzchnia domu
bez kotłowni, garażu
94,34 m2
Powierzchnia kotłowni 3,12 m2
Powierzchnia garażu 17,26 m2
Min. wymiary działki [i] 7,64x19,67 m
Kubatura 557,45 m3
Powierzchnia zabudowy 86,44 m2
Powierzchnia użytkowa [i] 94,34 m2
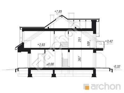
Wysokość 8,17 m
TECHNOLOGIA I KONSTRUKCJA:
ściany zewnetrzne: pustak ceramiczny Porotherm 25 cm, styropian 20 cm, tynk
strop: płyta żelbetowa
ścianka kolankowa: 109 cm
dach: dwuspadowy, nachylenie 35 st , więźba drewniana, dachówka ceramiczna



CENA PROJEKTU:

4 790,00 zł

zamów na archon.pl
podyskutuj o projekcie Dom w klematisach
Dom w klematisach
PARTER 64,32 (65,01)
1. Wiatrołap 3,90
2. Garaż 17,26 (17,95)
3. Hol 6,69
4. Schody 2,03
5. Salon 24,10
6. Kuchnia 5,75
7. Toaleta 1,47
8. Kotłownia 3,12
Dom w klematisach
PODDASZE 50,40 (60,55)
1. Hol i schody 6,63
2. Pokój 10,23 (12,02)
3. Pokój 10,63 (12,41)
4. Łazienka 4,72
5. Pokój 7,45 (10,91)
6. Pokój 10,74 (13,86)
White
White

Porozmawiaj o projekcie

comments powered by Disqus