White
White

Projekt domu ARCHON+ Dom w muszkatach 2 (B)

więcej o projekcie Dom w muszkatach 2 (B) na archon.pl »
Dom do zabudowy bliźniaczej z poddaszem użytkowym
garaż, 5 pokoi, 2 łazienki, spiżarka, WC, kotłownia,
PARAMETRY TECHNICZNE
Powierzchnia domu
bez kotłowni, garażu
101,83 m2
Powierzchnia kotłowni 7,42 m2
Powierzchnia garażu 20,22 m2
Min. wymiary działki [i] 13,30x20,00 m
Kubatura 624,91 m3
Powierzchnia zabudowy 97,14 m2
Powierzchnia użytkowa [i] 100,36 m2
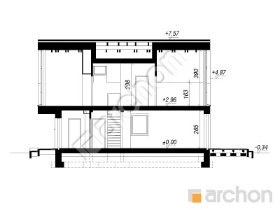
Wysokość 7,91 m
TECHNOLOGIA I KONSTRUKCJA:
ściany zewnetrzne: bloczek z betonu komórkowego H+H 24 cm, styropian 20 cm, tynk
strop: płyta żelbetowa
ścianka kolankowa: 163 cm
dach: dwuspadowy, nachylenie 42 st , I 35 st , więźba drewniana, blacha



CENA PROJEKTU:

4 920,00 zł

zamów na archon.pl
podyskutuj o projekcie Dom w muszkatach 2 (B)
Dom w muszkatach 2 (B)
PARTER 66,14 (68,42)
1. Wiatrołap 3,72
2. Hol 4,03
3. Kotłownia 7,42
4. Toaleta 1,23
5. Spiżarnia 1,47 (3,75)
6. Salon z aneksem kuchennym 28,05
7. Garaż 20,22
Dom w muszkatach 2 (B)
PODDASZE 63,33 (75,10)
1. Schody 4,07 (4,16)
2. Hol 8,29 (8,50)
3. Łazienka 6,07 (6,76)
4. Pokój 15,46 (17,54)
5. Pokój {z łazienką} 10,84 (14,37)
6. Łazienka 3,65 (6,33)
7. Pokój 7,53 (8,97)
8. Pokój 7,42 (8,47)
White
White

Porozmawiaj o projekcie

comments powered by Disqus