White
White

Projekt domu ARCHON+ Dom w gunnerach (B)

więcej o projekcie Dom w gunnerach (B) na archon.pl »
Dom do zabudowy bliźniaczej z poddaszem użytkowym
garaż, 4 pokoje, 1 kuchnia, 1 łazienka, WC, garderoby, kominek,
PARAMETRY TECHNICZNE
Powierzchnia domu
bez garażu
77,28 m2
Powierzchnia garażu 19,47 m2
Min. wymiary działki [i] 13,03x16,50 m
Kubatura 482,48 m3
Powierzchnia zabudowy 73,42 m2
Powierzchnia użytkowa [i] 74,50 m2
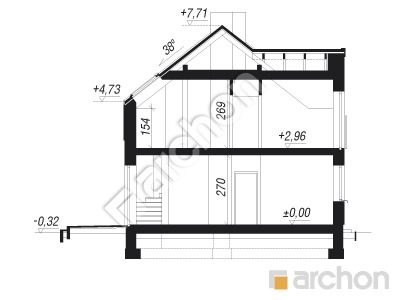
Wysokość 8,03 m
TECHNOLOGIA I KONSTRUKCJA:
ściany zewnetrzne: bloczek z betonu komórkowego H+H 24 cm, styropian 20 cm, tynk
strop: płyta żelbetowa
ścianka kolankowa: 154 cm
dach: dwuspadowy, nachylenie 38 st , więźba drewniana, blacha



CENA PROJEKTU:

4 640,00 zł

zamów na archon.pl
podyskutuj o projekcie Dom w gunnerach (B)
Dom w gunnerach (B)
PARTER 48,32 (49,85)
1. Wiatrołap 3,63
2. Kuchnia 6,63
3. Salon + Jadalnia 16,84
4. Toaleta 1,75 (1,79)
5. Garaż 19,47 (20,96)
Dom w gunnerach (B)
PODDASZE 48,43 (53,46)
1. Schody 4,22 (4,22)
2. Hol 4,83 (4,83)
3. Pokój 9,61 (10,85)
4. Łazienka 5,72 (6,97)
5. Pokój 10,26 (11,60)
6. Garderoba 2,78 (2,78)
7. Pokój 11,01 (12,21)
White
White

Porozmawiaj o projekcie

comments powered by Disqus