White
White

Projekt domu ARCHON+ Dom w żurawkach 10

więcej o projekcie Dom w żurawkach 10 na archon.pl »
Dom jednorodzinny z poddaszem użytkowym
garaż, 4 pokoje, 1 kuchnia, 2 łazienki, spiżarka, kotłownia, pomieszczenie gospodarcze, kominek,
PARAMETRY TECHNICZNE
Powierzchnia domu
bez kotłowni, garażu
111,02 m2
Powierzchnia kotłowni 6,86 m2
Powierzchnia garażu 21,83 m2
Min. wymiary działki [i] 20,00x17,60 m
Kubatura 704,60 m3
Powierzchnia zabudowy 109,67 m2
Powierzchnia użytkowa [i] 103,04 m2
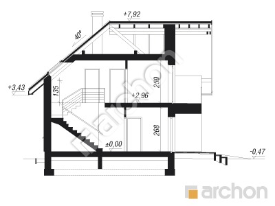
Wysokość 8,39 m
TECHNOLOGIA I KONSTRUKCJA:
ściany zewnetrzne: pustak ceramiczny Porotherm 25 cm, styropian 20 cm, tynk
strop: płyta żelbetowa
ścianka kolankowa: 135 cm
dach: dwuspadowy, nachylenie 40 st , więźba drewniana, dachówka ceramiczna



CENA PROJEKTU:

4 990,00 zł

zamów na archon.pl
podyskutuj o projekcie Dom w żurawkach 10
Dom w żurawkach 10
PARTER 74,66 (77,41)
1. Wiatrołap 4,90
2. Salon + Jadalnia 23,88
3. Kuchnia 9,51
4. Spiżarnia 2,84 (4,99)
5. Łazienka 4,84 (5,44)
6. Kotłownia 6,86
7. Garaż 21,83
Dom w żurawkach 10
PODDASZE 65,05 (72,40)
1. Hol i schody 12,44
2. Pokój 12,10 (14,47)
3. Pokój 9,99 (11,93)
4. Pom. gospodarcze 5,14 (5,41)
5. Pokój 16,15 (16,88)
6. Łazienka 9,23 (11,27)
White
White

Porozmawiaj o projekcie

comments powered by Disqus