White
White

Projekt domu ARCHON+ Dom w bugenwillach (G2P)

więcej o projekcie Dom w bugenwillach (G2P) na archon.pl »
Dom jednorodzinny z poddaszem użytkowym
garaż, piwnica, 6 pokoi, 1 kuchnia, 2 łazienki, kotłownia, pralnia, garderoby, pomieszczenie gospodarcze, kominek,
PARAMETRY TECHNICZNE
Powierzchnia domu
bez garażu, piwnic
169,86 m2
Powierzchnia garażu 40,85 m2
Powierzchnia piwnic 71,80 m2
Min. wymiary działki [i] 25,30x18,20 m
* po adaptacji [i] 24,30x18,20 m
Kubatura 1 208,25 m3
Powierzchnia zabudowy 154,63 m2
Powierzchnia użytkowa [i] 149,76 m2
Wysokość 8,41 m
TECHNOLOGIA I KONSTRUKCJA:
ściany zewnetrzne: pustak ceramiczny Porotherm 25 cm, styropian 20 cm, tynk
strop: płyta żelbetowa
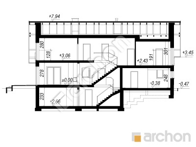
ścianka kolankowa: 128 cm
dach: dwuspadowy, nachylenie 40 st , więźba drewniana, dachówka ceramiczna



CENA PROJEKTU:

6 590,00 zł

zamów na archon.pl
podyskutuj o projekcie Dom w bugenwillach (G2P)
Dom w bugenwillach (G2P)
PIWNICA 71,80 (74,52)
1. Schody 2,78
2. Korytarz 7,23 (9,95)
3. Pom. gospodarcze 15,34
4. Pom. gospodarcze 30,20
5. Kotłownia 16,25
Dom w bugenwillach (G2P)
PARTER 115,77
1. Wiatrołap 2,95
2. Hol 6,81
3. Salon + Jadalnia 31,26
4. Kuchnia 10,77
5. Łazienka 4,79
6. Pokój 10,32
7. Schody 1,86
8. Pom. gospodarcze 6,16
9. Garaż 40,85
Dom w bugenwillach (G2P)
PODDASZE 94,94 (119,69)
1. Hol i schody 15,04
2. Pokój {z garderobą} 19,19 (24,29)
3. Garderoba 7,24 (7,58)
4. Łazienka 10,56 (11,18)
5. Pralnia 3,66 (5,51)
6. Garderoba 3,04 (8,07)
7. Pokój 13,47 (16,32)
8. Pokój 13,41 (16,45)
9. Pokój 9,33 (15,25)
White
White

Porozmawiaj o projekcie

comments powered by Disqus