White
White

Projekt domu ARCHON+ Dom w nektarynkach (N)

więcej o projekcie Dom w nektarynkach (N) na archon.pl »
Dom jednorodzinny z poddaszem użytkowym
garaż, 6 pokoi, 1 kuchnia, 2 łazienki, kotłownia, pralnia, garderoby, kominek,
PARAMETRY TECHNICZNE
Powierzchnia domu
bez kotłowni, garażu
143,85 m2
Powierzchnia kotłowni 7,04 m2
Powierzchnia garażu 21,11 m2
Min. wymiary działki [i] 21,90x18,22 m
* po adaptacji [i] 19,90x18,22 m
Kubatura 823,38 m3
Powierzchnia zabudowy 131,92 m2
Powierzchnia użytkowa [i] 131,50 m2
Wysokość 8,65 m
TECHNOLOGIA I KONSTRUKCJA:
ściany zewnetrzne: pustak ceramiczny Porotherm 25 cm, styropian 20 cm, tynk
strop: płyta żelbetowa
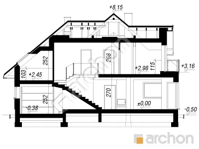
ścianka kolankowa: 115 cm
dach: czterospadowy, nachylenie 40 st , więźba drewniana, dachówka ceramiczna



CENA PROJEKTU:

5 550,00 zł

zamów na archon.pl
podyskutuj o projekcie Dom w nektarynkach (N)
Dom w nektarynkach (N)
PARTER 98,65 (100,92)
1. Wiatrołap 5,44
2. Hol 2,51
3. Kuchnia 10,72
4. Salon 32,61
5. Pokój 10,50
6. Łazienka 4,50
7. Pralnia 4,22
8. Garaż 21,11 (23,38)
9. Kotłownia 7,04
Dom w nektarynkach (N)
PODDASZE 73,35 (97,83)
1. Schody 5,46 (5,46)
2. Garderoba 5,16 (9,90)
3. Pokój 9,36 (16,02)
4. Korytarz 5,79 (5,79)
5. Łazienka 6,14 (9,26)
6. Pokój 11,86 (15,39)
7. Pokój 11,95 (12,68)
8. Garderoba 2,97 (5,70)
9. Pokój 14,66 (17,63)
White
White

Porozmawiaj o projekcie

comments powered by Disqus