White
White

Projekt domu ARCHON+ Dom w pięknotkach 2

więcej o projekcie Dom w pięknotkach 2 na archon.pl »
Dom jednorodzinny parterowy z poddaszem użytkowym
garaż, 4 pokoje, 1 kuchnia, 1 łazienka, WC, kotłownia, pralnia, garderoby, kominek,
PARAMETRY TECHNICZNE
Powierzchnia domu
bez kotłowni, garażu
120,76 m2
Powierzchnia kotłowni 7,54 m2
Powierzchnia garażu 19,63 m2
Min. wymiary działki [i] 19,40x17,10 m
* po adaptacji [i] 18,40x17,10 m
Kubatura 722,56 m3
Powierzchnia zabudowy 104,56 m2
Powierzchnia użytkowa [i] 110,59 m2
Wysokość 8,87 m
TECHNOLOGIA I KONSTRUKCJA:
ściany zewnetrzne: bloczek z betonu komórkowego H+H 24 cm, styropian 20 cm, tynk
strop: płyta żelbetowa
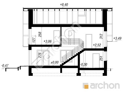
ścianka kolankowa: 127 cm
dach: dwuspadowy, nachylenie 40 st , więźba drewniana, dachówka ceramiczna



CENA PROJEKTU:

5 100,00 zł

zamów na archon.pl
podyskutuj o projekcie Dom w pięknotkach 2
Dom w pięknotkach 2
PARTER 77,99 (80,41)
1. Wiatrołap 5,00
2. Hol 2,17
3. Toaleta 1,65
4. Kuchnia 11,96
5. Salon 30,04 (32,34)
6. Kotłownia 7,54
7. Garaż 19,63 (19,75)
Dom w pięknotkach 2
PODDASZE 69,94 (79,66)
1. Hol i schody 13,10
2. Łazienka 8,40 (9,18)
3. Pokój 10,45 (11,23)
4. Garderoba 6,09 (7,60)
5. Pokój {z garderobą} 14,19 (16,76)
6. Pokój 13,63 (16,46)
7. Pralnia 4,08 (5,33)
White
White

Porozmawiaj o projekcie

comments powered by Disqus