White
White

Projekt domu ARCHON+ Dom w gunnerach (SA)

więcej o projekcie Dom w gunnerach (SA) na archon.pl »
Dom do zabudowy szeregowej z poddaszem użytkowym
garaż, 4 pokoje, 1 kuchnia, 1 łazienka, WC, garderoby, kominek,
PARAMETRY TECHNICZNE
Powierzchnia domu
bez garażu
78,35 m2
Powierzchnia garażu 19,27 m2
Min. wymiary działki [i] 8,85x16,50 m
Kubatura 478,87 m3
Powierzchnia zabudowy 71,97 m2
Powierzchnia użytkowa [i] 75,57 m2
Wysokość 8,03 m
TECHNOLOGIA I KONSTRUKCJA:
ściany zewnetrzne: bloczek z betonu komórkowego H+H 24 cm, styropian 20 cm, tynk
strop: płyta żelbetowa
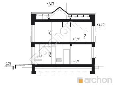
ścianka kolankowa: 154 cm
dach: dwuspadowy, nachylenie 38 st , więźba drewniana, blacha



CENA PROJEKTU:

4 640,00 zł

zamów na archon.pl
podyskutuj o projekcie Dom w gunnerach (SA)
Dom w gunnerach (SA)
PARTER 48,08 (50,46)
1. Wiatrołap 3,63
2. Kuchnia 6,63
3. Salon + Jadalnia 16,84
4. Toaleta 1,71 (1,79)
5. Garaż 19,27 (21,57)
Dom w gunnerach (SA)
PODDASZE 49,54 (54,02)
1. Schody 4,22
2. Hol 4,83
3. Pokój 9,57 (10,85)
4. Łazienka 5,69 (6,97)
5. Pokój 9,87 (11,60)
6. Garderoba 2,78
7. Pokój 12,58 (12,77)
White
White

Porozmawiaj o projekcie

comments powered by Disqus