White
White

Projekt domu ARCHON+ Dom w aurorach 2

więcej o projekcie Dom w aurorach 2 na archon.pl »
Dom jednorodzinny z poddaszem użytkowym
5 pokoi, 1 kuchnia, 2 łazienki, spiżarka, kotłownia, pralnia, garderoby, pomieszczenie gospodarcze, kominek,
PARAMETRY TECHNICZNE
Powierzchnia domu
bez kotłowni
144,80 m2
Powierzchnia kotłowni 6,89 m2
Min. wymiary działki [i] 20,30x18,70 m
* po adaptacji [i] 19,30x16,40 m
Kubatura 765,08 m3
Powierzchnia zabudowy 115,12 m2
Powierzchnia użytkowa [i] 127,58 m2
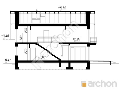
Wysokość 8,61 m
TECHNOLOGIA I KONSTRUKCJA:
ściany zewnetrzne: pustak ceramiczny Porotherm 25 cm, styropian 20 cm, tynk
strop: płyta żelbetowa
ścianka kolankowa: 140 cm
dach: dwuspadowy, nachylenie 40 st , więźba drewniana, dachówka ceramiczna



CENA PROJEKTU:

5 420,00 zł

zamów na archon.pl
podyskutuj o projekcie Dom w aurorach 2
Dom w aurorach 2
PARTER 83,59 (85,90)
1. Wiatrołap 5,53
2. Hol 10,43 (12,74)
3. Spiżarnia 2,39
4. Kuchnia 11,21
5. Salon + Jadalnia 31,42
6. Pokój 10,39
7. Łazienka 3,38
8. Pom. gospodarcze 1,95
9. Kotłownia 6,89
Dom w aurorach 2
PODDASZE 68,10 (86,73)
1. Hol i schody 11,94 (11,94)
2. Pokój {z garderobą} 11,85 (13,45)
3. Pokój {z garderobą} 12,37 (14,49)
4. Garderoba 5,49 (6,58)
5. Pokój {z garderobą} 10,72 (15,94)
6. Łazienka 8,34 (9,88)
7. Pralnia 3,88 (7,51)
8. Garderoba 3,51 (6,94)
White
White

Porozmawiaj o projekcie

comments powered by Disqus