White
White

Projekt domu ARCHON+ Dom w aromach 2 (G2)

więcej o projekcie Dom w aromach 2 (G2) na archon.pl »
Dom jednorodzinny z poddaszem użytkowym
garaż, 5 pokoi, 1 kuchnia, 3 łazienki, spiżarka, kotłownia, garderoby, antersola, kominek,
PARAMETRY TECHNICZNE
Powierzchnia domu
bez kotłowni, garażu
158,78 m2
Powierzchnia kotłowni 5,68 m2
Powierzchnia garażu 35,24 m2
Min. wymiary działki [i] 24,70x21,80 m
* po adaptacji [i] 23,70x21,80 m
Kubatura 1 073,89 m3
Powierzchnia zabudowy 177,10 m2
Powierzchnia użytkowa [i] 148,23 m2
Wysokość 8,30 m
TECHNOLOGIA I KONSTRUKCJA:
ściany zewnetrzne: pustak ceramiczny Porotherm 25 cm, styropian 20 cm, tynk
strop: płyta żelbetowa
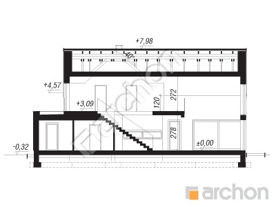
ścianka kolankowa: 120 cm
dach: dwuspadowy, nachylenie 40 st , więźba drewniana, dachówka ceramiczna



CENA PROJEKTU:

5 850,00 zł

zamów na archon.pl
podyskutuj o projekcie Dom w aromach 2 (G2)
Dom w aromach 2 (G2)
PARTER 131,19 (134,38)
1. Wiatrołap 6,02
2. Garderoba 5,19
3. Hol 10,28 (13,21)
4. Salon + Jadalnia 32,67
5. Kuchnia 15,12
6. Spiżarnia 2,15
7. Pokój 12,62
8. Korytarz 3,48
9. Łazienka 2,74 (3,00)
10. Kotłownia 5,68
11. Garaż 35,24
Dom w aromach 2 (G2)
PODDASZE 68,51 (81,00)
1. Schody 4,66
2. Hol 10,13
3. Pokój {z łazienką i garderobą} 9,61 (11,97)
4. Garderoba 3,21 (4,96)
5. Łazienka 3,66
6. Łazienka 7,03 (8,80)
7. Antresola 6,50 (7,57)
8. Pokój 11,79 (14,56)
9. Pokój 11,92 (14,69)
White
White

Porozmawiaj o projekcie

comments powered by Disqus