White
White

Projekt domu ARCHON+ Dom w laurowiśniach

więcej o projekcie Dom w laurowiśniach na archon.pl »
Dom jednorodzinny z poddaszem użytkowym
garaż, 6 pokoi, 1 kuchnia, 3 łazienki, spiżarka, kotłownia, garderoby, kominek,
PARAMETRY TECHNICZNE
Powierzchnia domu
bez kotłowni, garażu
159,23 m2
Powierzchnia kotłowni 6,60 m2
Powierzchnia garażu 19,19 m2
Min. wymiary działki [i] 16,80x23,70 m
* po adaptacji 14,80x23,70 m
Kubatura 931,89 m3
Powierzchnia zabudowy 138,65 m2
Powierzchnia użytkowa [i] 145,06 m2
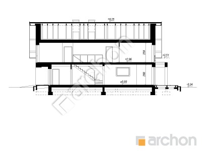
Wysokość 8,59 m
TECHNOLOGIA I KONSTRUKCJA:
ściany zewnetrzne: pustak ceramiczny Porotherm 25 cm, styropian 20 cm, tynk
strop: płyta żelbetowa
ścianka kolankowa: 135 cm
dach: dwuspadowy, nachylenie 40 st , więźba drewniana, dachówka ceramiczna



CENA PROJEKTU:

5 850,00 zł

zamów na archon.pl
podyskutuj o projekcie Dom w laurowiśniach
Dom w laurowiśniach
PARTER 92,43 (94,91)
1. Wiatrołap 4,51
2. Hol 5,65
3. Garaż 19,19 (19,74)
4. Spiżarnia 5,15 (7,08)
5. Kuchnia 14,50
6. Salon 28,91
7. Łazienka 3,89
8. Pokój 10,63
Dom w laurowiśniach
PODDASZE 92,59 (107,24)
1. Schody 4,14 (4,14)
2. Hol 12,64 (12,64)
3. Pokój 11,58 (13,15)
4. Kotłownia 6,60 (8,62)
5. Łazienka 6,48 (8,11)
6. Pokój 13,97 (16,13)
7. Pokój 13,97 (16,13)
8. Garderoba 4,75 (5,90)
9. Łazienka 2,97 (3,74)
10. Garderoba 4,27 (5,29)
11. Pokój {z łazienką i garderobą} 11,22 (13,39)
White
White

Porozmawiaj o projekcie

comments powered by Disqus