White
White

Projekt domu ARCHON+ Dom w zdrojówkach 10

więcej o projekcie Dom w zdrojówkach 10 na archon.pl »
Dom jednorodzinny z poddaszem użytkowym
garaż, 5 pokoi, 1 kuchnia, 2 łazienki, spiżarka, kotłownia, pralnia, kominek,
PARAMETRY TECHNICZNE
Powierzchnia domu
bez kotłowni, garażu
117,96 m2
Powierzchnia kotłowni 4,39 m2
Powierzchnia garażu 19,43 m2
Min. wymiary działki [i] 20,00x17,00 m
Kubatura 706,74 m3
Powierzchnia zabudowy 108,42 m2
Powierzchnia użytkowa [i] 109,43 m2
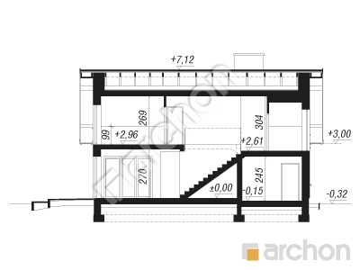
Wysokość 8,31 m
TECHNOLOGIA I KONSTRUKCJA:
ściany zewnetrzne: bloczek z betonu komórkowego H+H 24 cm, styropian 20 cm, tynk
strop: płyta żelbetowa
ścianka kolankowa: 99 cm
dach: dwuspadowy, nachylenie 40 st , więźba drewniana, dachówka ceramiczna



CENA PROJEKTU:

5 100,00 zł

zamów na archon.pl
podyskutuj o projekcie Dom w zdrojówkach 10
Dom w zdrojówkach 10
PARTER 73,02 (75,27)
1. Wiatrołap 5,35
2. Hol 3,02
3. Łazienka 3,43
4. Salon + Jadalnia 25,16
5. Kuchnia 10,17
6. Spiżarnia 2,07
7. Kotłownia 4,39
8. Garaż 19,43 (21,68)
Dom w zdrojówkach 10
PODDASZE 68,76 (83,38)
1. Schody 3,40
2. Korytarz 8,45
3. Łazienka 8,18 (9,87)
4. Pokój 10,68 (12,37)
5. Pokój 10,74 (11,77)
6. Pokój 11,18 (14,42)
7. Pokój 9,67 (12,90)
8. Pralnia 6,46 (10,20)
White
White

Porozmawiaj o projekcie

comments powered by Disqus