White
White

Projekt domu ARCHON+ Dom w koniczynce 3

więcej o projekcie Dom w koniczynce 3 na archon.pl »
Dom jednorodzinny z poddaszem użytkowym
garaż, 4 pokoje, 1 kuchnia, 1 łazienka, spiżarka, WC, kotłownia, garderoby, kominek,
PARAMETRY TECHNICZNE
Powierzchnia domu
bez kotłowni, garażu
113,64 m2
Powierzchnia kotłowni 6,17 m2
Powierzchnia garażu 18,66 m2
Min. wymiary działki [i] 20,52x17,12 m
* po adaptacji [i] 19,52x17,12 m
Kubatura 698,21 m3
Powierzchnia zabudowy 109,00 m2
Powierzchnia użytkowa [i] 108,59 m2
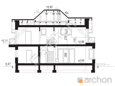
Wysokość 8,87 m
TECHNOLOGIA I KONSTRUKCJA:
ściany zewnetrzne: pustak ceramiczny Porotherm 25 cm, styropian 20 cm, tynk
strop: płyta żelbetowa
ścianka kolankowa: 110 cm
dach: czterospadowy, nachylenie 42 st , więźba drewniana, dachówka ceramiczna



CENA PROJEKTU:

4 990,00 zł

zamów na archon.pl
podyskutuj o projekcie Dom w koniczynce 3
Dom w koniczynce 3
PARTER 81,48 (85,07)
1. Wiatrołap 4,68
2. Hol 4,58
3. Toaleta 1,87 (5,46)
4. Schody 6,03
5. Salon 29,07
6. Kuchnia 8,82
7. Spiżarnia 1,60
8. Garaż 18,66
9. Kotłownia 6,17
Dom w koniczynce 3
PODDASZE 56,99 (75,24)
1. Hol 5,35
2. Pokój 14,18 (19,10)
3. Pokój 12,48 (16,59)
4. Łazienka 6,80 (8,27)
5. Pokój {z garderobą} 14,73 (19,08)
6. Garderoba 3,45 (6,85)
White
White

Porozmawiaj o projekcie

comments powered by Disqus