White
White

Projekt domu ARCHON+ Dom na wzgórzu

więcej o projekcie Dom na wzgórzu na archon.pl »
Dom jednorodzinny parterowy z poddaszem użytkowym
4 pokoje, 1 kuchnia, 1 łazienka, WC, garderoby, kominek,
PARAMETRY TECHNICZNE
Powierzchnia domu 95,72 m2
Min. wymiary działki [i] 16,02x16,82 m
* po adaptacji [i] 14,02x16,82 m
Kubatura 479,44 m3
Powierzchnia zabudowy 71,41 m2
Powierzchnia użytkowa [i] 91,28 m2
Wysokość 8,71 m
TECHNOLOGIA I KONSTRUKCJA:
ściany zewnetrzne: pustak ceramiczny Porotherm 25 cm, styropian 20 cm, tynk
strop: płyta żelbetowa
ścianka kolankowa: 123 cm
dach: dwuspadowy, nachylenie 45 st , więźba drewniana, dachówka ceramiczna



CENA PROJEKTU:

4 640,00 zł

zamów na archon.pl
podyskutuj o projekcie Dom na wzgórzu
Dom na wzgórzu
PARTER 49,80 (52,60)
1. Wiatrołap 5,39
2. Hol 2,24
3. Kuchnia 8,92
4. Salon 31,12 (33,92)
5. Toaleta 2,13
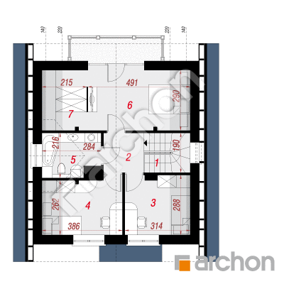
Dom na wzgórzu
PODDASZE 45,92 (52,10)
1. Schody 4,38 (4,38)
2. Hol 3,55 (3,55)
3. Pokój 7,06 (8,63)
4. Pokój 8,61 (10,04)
5. Łazienka 5,45 (5,45)
6. Pokój {z garderobą} 12,43 (14,02)
7. Garderoba 4,44 (6,03)
White
White

Porozmawiaj o projekcie

comments powered by Disqus