White
White

Projekt domu ARCHON+ Rezydencja w nerterach 2

więcej o projekcie Rezydencja w nerterach 2 na archon.pl »
Dom jednorodzinny z poddaszem użytkowym
garaż, 7 pokoi, 1 kuchnia, 2 łazienki, spiżarka, jadalnia, WC, kotłownia, pralnia, garderoby, antersola, kominek,
PARAMETRY TECHNICZNE
Powierzchnia domu
bez kotłowni, garażu
279,06 m2
Powierzchnia kotłowni 4,56 m2
Powierzchnia garażu 34,97 m2
Min. wymiary działki [i] 26,42x23,12 m
Kubatura 1 456,50 m3
Powierzchnia zabudowy 238,27 m2
Powierzchnia użytkowa [i] 261,88 m2
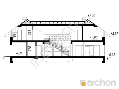
Wysokość 7,61 m
TECHNOLOGIA I KONSTRUKCJA:
ściany zewnetrzne: pustak ceramiczny Porotherm 25 cm, styropian 20 cm, tynk
strop: płyta żelbetowa
ścianka kolankowa: 163 cm
dach: czterospadowy, nachylenie 35 st , więźba drewniana, dachówka ceramiczna



CENA PROJEKTU:

8 150,00 zł

zamów na archon.pl
podyskutuj o projekcie Rezydencja w nerterach 2
Rezydencja w nerterach 2
PARTER 185,58 (189,23)
1. Wiatrołap 5,68
2. Hol 4,54
3. Korytarz 1,50
4. Garaż 34,97
5. Kotłownia 4,56
6. Toaleta 2,86
7. Garderoba 4,46
8. Łazienka 5,71
9. Pokój {z łazienką i garderobą} 18,52
10. Korytarz 5,62
11. Salon 20,14 (23,79)
12. Salon 27,70
13. Jadalnia 24,66
14. Kuchnia 22,86
15. Spiżarnia 1,80
Rezydencja w nerterach 2
PODDASZE 133,01 (162,09)
1. Schody 5,95 (5,95)
2. Hol 27,65 (32,44)
3. Pokój 18,41 (23,68)
4. Łazienka 10,36 (11,40)
5. Sauna 5,20 (6,47)
6. Garderoba 1,52 (1,52)
7. Pom. rekreacyjne 16,88 (22,10)
8. Pokój 17,10 (22,10)
9. Pralnia 9,40 (10,66)
10. Pokój 20,54 (25,77)
White
White

Porozmawiaj o projekcie

comments powered by Disqus