White
White

Projekt domu ARCHON+ Dom w wiciokrzewie (G2)

więcej o projekcie Dom w wiciokrzewie (G2) na archon.pl »
Dom jednorodzinny z poddaszem użytkowym
garaż, 5 pokoi, 1 kuchnia, 2 łazienki, spiżarka, kotłownia, garderoby, pomieszczenie gospodarcze, kominek,
PARAMETRY TECHNICZNE
Powierzchnia domu
bez kotłowni, garażu
163,68 m2
Powierzchnia kotłowni 9,58 m2
Powierzchnia garażu 42,05 m2
Min. wymiary działki [i] 26,50x19,02 m
* po adaptacji [i] 24,70x19,02 m
Kubatura 1 055,95 m3
Powierzchnia zabudowy 163,69 m2
Powierzchnia użytkowa [i] 141,89 m2
Wysokość 8,84 m
TECHNOLOGIA I KONSTRUKCJA:
ściany zewnetrzne: pustak ceramiczny Porotherm 25 cm, styropian 20 cm, tynk
strop: płyta żelbetowa
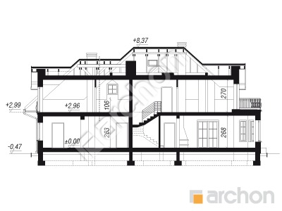
ścianka kolankowa: 106 cm
dach: czterospadowy, nachylenie 42 st , więźba drewniana, dachówka ceramiczna



CENA PROJEKTU:

6 240,00 zł

zamów na archon.pl
podyskutuj o projekcie Dom w wiciokrzewie (G2)
Dom w wiciokrzewie (G2)
PARTER 120,19 (122,72)
1. Wiatrołap 6,38
2. Hol 3,85
3. Spiżarnia 1,47
4. Kuchnia 11,53
5. Salon 29,40
6. Gabinet 12,07 (13,88)
7. Łazienka 3,86 (4,58)
8. Garaż 42,05
9. Kotłownia 9,58
Dom w wiciokrzewie (G2)
PODDASZE 95,12 (118,03)
1. Schody 4,18 (4,18)
2. Hol 10,16 (10,16)
3. Łazienka 11,03 (11,59)
4. Pokój 20,93 (25,43)
5. Garderoba 2,85 (6,05)
6. Pokój 14,90 (15,82)
7. Garderoba 5,90 (10,12)
8. Garderoba 1,93 (4,84)
9. Pokój 13,60 (17,87)
10. Pom. gospodarcze 9,64 (11,97)
White
White

Porozmawiaj o projekcie

comments powered by Disqus