White
White

Projekt domu ARCHON+ Dom w tamaryszkach 8 (P)

więcej o projekcie Dom w tamaryszkach 8 (P) na archon.pl »
Dom jednorodzinny parterowy z poddaszem użytkowym
garaż, piwnica, 6 pokoi, 1 kuchnia, 2 łazienki, spiżarka, kotłownia, pralnia, garderoby, pomieszczenie gospodarcze, kominek,
PARAMETRY TECHNICZNE
Powierzchnia domu
bez kotłowni, garażu, piwnic
172,27 m2
Powierzchnia kotłowni 11,23 m2
Powierzchnia garażu 27,26 m2
Powierzchnia piwnic 79,09 m2
Min. wymiary działki [i] 23,00x20,00 m
* po adaptacji [i] 21,00x20,00 m
Kubatura 1 297,05 m3
Powierzchnia zabudowy 152,53 m2
Powierzchnia użytkowa [i] 162,09 m2
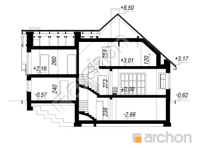
Wysokość 9,12 m
TECHNOLOGIA I KONSTRUKCJA:
ściany zewnetrzne: pustak ceramiczny Porotherm 25 cm, styropian 20 cm, tynk
strop: płyta żelbetowa
ścianka kolankowa: 120 cm
dach: dwuspadowy, nachylenie 42 st , I 35 st , więźba drewniana, dachówka ceramiczna



CENA PROJEKTU:

6 590,00 zł

zamów na archon.pl
podyskutuj o projekcie Dom w tamaryszkach 8 (P)
Dom w tamaryszkach 8 (P)
79,09 (81,97)
1. Korytarz 5,63
2. Schody 2,66
3. Schowek 0,85 (3,73)
4. Pom. gospodarcze 11,62
5. Pom. gospodarcze 34,71
6. Pralnia 23,62
Dom w tamaryszkach 8 (P)
PARTER 115,57
1. Wiatrołap 2,80
2. Hol 8,36
3. Łazienka 4,31
4. Garaż 27,26
5. Kotłownia 11,23
6. Schody 1,72
7. Pokój 12,45
8. Salon 35,19
9. Kuchnia 10,47
10. Spiżarnia 1,78
Dom w tamaryszkach 8 (P)
PODDASZE 95,19 (115,18)
1. Schody 5,12 (5,12)
2. Garderoba 4,35 (6,62)
3. Pokój {z garderobą} 20,51 (25,48)
4. Garderoba 4,05 (6,60)
5. Korytarz 6,08 (6,08)
6. Pokój 12,57 (14,99)
7. Pokój 16,92 (20,37)
8. Pokój 15,11 (18,18)
9. Łazienka 10,48 (11,74)
White
White

Porozmawiaj o projekcie

comments powered by Disqus