White
White

Projekt domu ARCHON+ Dom w rododendronach 22

więcej o projekcie Dom w rododendronach 22 na archon.pl »
Dom jednorodzinny parterowy z poddaszem użytkowym
garaż, 5 pokoi, 1 kuchnia, 2 łazienki, kotłownia, garderoby, kominek,
PARAMETRY TECHNICZNE
Powierzchnia domu
bez kotłowni, garażu
108,86 m2
Powierzchnia kotłowni 8,00 m2
Powierzchnia garażu 18,99 m2
Min. wymiary działki [i] 21,50x16,90 m
* po adaptacji [i] 19,70x16,90 m
Kubatura 688,68 m3
Powierzchnia zabudowy 116,54 m2
Powierzchnia użytkowa [i] 105,49 m2
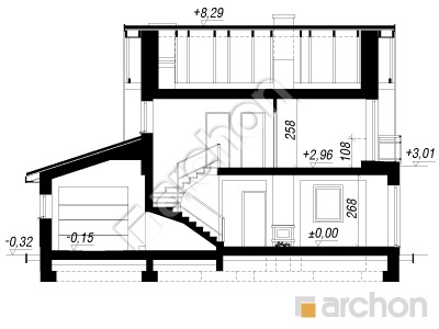
Wysokość 8,61 m
TECHNOLOGIA I KONSTRUKCJA:
ściany zewnetrzne: pustak ceramiczny Porotherm 25 cm, styropian 20 cm, tynk
strop: płyta żelbetowa
ścianka kolankowa: 108 cm
dach: dwuspadowy, nachylenie 42 st , więźba drewniana, dachówka ceramiczna



CENA PROJEKTU:

4 990,00 zł

zamów na archon.pl
podyskutuj o projekcie Dom w rododendronach 22
Dom w rododendronach 22
PARTER 85,05 (87,83)
1. Wiatrołap 3,02
2. Hol 5,00
3. Kuchnia 8,98
4. Salon + Jadalnia 22,94
5. Gabinet 10,61
6. Łazienka 4,14 (4,71)
7. Garderoba 3,37
8. Garaż 18,99 (21,20)
9. Kotłownia 8,00
Dom w rododendronach 22
PODDASZE 50,80 (59,02)
1. Schody 4,31 (4,31)
2. Hol 4,69 (4,69)
3. Łazienka 5,34 (7,53)
4. Pokój 10,92 (13,11)
5. Pokój 16,16 (18,08)
6. Pokój 9,38 (11,30)
White
White

Porozmawiaj o projekcie

comments powered by Disqus