White
White

Projekt domu ARCHON+ Dom w orliczkach 2 (G2P)

więcej o projekcie Dom w orliczkach 2 (G2P) na archon.pl »
Dom jednorodzinny z poddaszem użytkowym
garaż, piwnica, strych, 5 pokoi, 1 kuchnia, 2 łazienki, spiżarka, kotłownia, pralnia, garderoby, pomieszczenie gospodarcze, kominek,
PARAMETRY TECHNICZNE
Powierzchnia domu
bez garażu, strychu, piwnic
164,04 m2
Powierzchnia garażu 41,96 m2
Powierzchnia piwnic 72,59 m2
Powierzchnia strychu 13,78 m2
Min. wymiary działki [i] 23,50x18,80 m
Kubatura 1 318,58 m3
Powierzchnia zabudowy 156,59 m2
Powierzchnia użytkowa [i] 152,17 m2
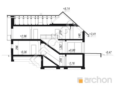
Wysokość 9,21 m
TECHNOLOGIA I KONSTRUKCJA:
ściany zewnetrzne: pustak ceramiczny Porotherm 25 cm, styropian 20 cm, tynk
strop: płyta żelbetowa
ścianka kolankowa: 1.40 cm
dach: dwuspadowy, nachylenie 42 st , więźba drewniana, dachówka ceramiczna



CENA PROJEKTU:

6 590,00 zł

zamów na archon.pl
podyskutuj o projekcie Dom w orliczkach 2 (G2P)
Dom w orliczkach 2 (G2P)
PIWNICA 72,59 (75,30)
1. Schody 3,63
2. Kotłownia 21,02
3. Spiżarnia 19,52
4. Pralnia 13,08
5. Pom. gospodarcze 15,34 (18,05)
Dom w orliczkach 2 (G2P)
PARTER 116,34
1. Wiatrołap 5,66
2. Hol 5,04
3. Łazienka 3,51
4. Kuchnia 17,81
5. Salon + Jadalnia 37,67
6. Pom. gospodarcze 4,69
7. Garaż 41,96
Dom w orliczkach 2 (G2P)
PODDASZE 103,44 (123,48)
1. Schody 3,84
2. Hol 14,72
3. Pokój 12,35 (13,38)
4. Pokój 13,18 (14,68)
5. Garderoba 4,28 (5,23)
6. Pokój 13,21 (14,90)
7. Pokój 15,16 (16,28)
8. Strych 13,78 (20,81)
9. Łazienka 10,02 (13,97)
10. Garderoba 2,90 (5,67)
White
White

Porozmawiaj o projekcie

comments powered by Disqus