White
White

Projekt domu ARCHON+ Dom pod liczi

więcej o projekcie Dom pod liczi na archon.pl »
Dom jednorodzinny z poddaszem użytkowym
garaż, 4 pokoje, 1 kuchnia, 1 łazienka, WC, kotłownia, garderoby, kominek,
PARAMETRY TECHNICZNE
Powierzchnia domu
bez kotłowni, garażu
105,74 m2
Powierzchnia kotłowni 6,08 m2
Powierzchnia garażu 19,67 m2
Min. wymiary działki [i] 18,62x18,12 m
* po adaptacji [i] 18,62x16,83 m
Kubatura 635,57 m3
Powierzchnia zabudowy 99,09 m2
Powierzchnia użytkowa [i] 101,19 m2
Wysokość 8,26 m
TECHNOLOGIA I KONSTRUKCJA:
ściany zewnetrzne: pustak ceramiczny Porotherm 25 cm, styropian 20 cm, tynk
strop: płyta żelbetowa
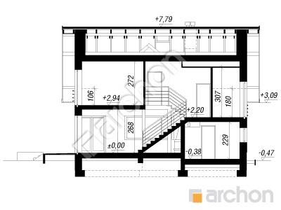
ścianka kolankowa: 106 cm
dach: dwuspadowy, nachylenie 40 st , więźba drewniana, dachówka ceramiczna



CENA PROJEKTU:

4 990,00 zł

zamów na archon.pl
podyskutuj o projekcie Dom pod liczi
Dom pod liczi
PARTER 74,77 (76,83)
1. Wiatrołap 5,39
2. Hol 1,36
3. Toaleta 1,79
4. Kuchnia 7,01
5. Salon + Jadalnia 29,88 (31,94)
6. Schody 3,59
7. Kotłownia 6,08
8. Garaż 19,67
Dom pod liczi
PODDASZE 56,72 (66,82)
1. Hol 1,58 (1,58)
2. Garderoba 4,55 (7,26)
3. Pokój {z garderobą} 15,31 (18,37)
4. Pokój 12,42 (14,55)
5. Łazienka 6,71 (7,48)
6. Pokój 13,38 (14,81)
7. Hol 2,77 (2,77)
White
White

Porozmawiaj o projekcie

comments powered by Disqus