White
White

Projekt domu ARCHON+ Dom pod miłorzębem (GR2M)

więcej o projekcie Dom pod miłorzębem (GR2M) na archon.pl »
Dom dwurodzinny (jednorodzinny dwulokalowy) parterowy z poddaszem użytkowym
garaż, 8 pokoi, 2 kuchnie, 2 łazienki, WC, garderoby, kominek,
PARAMETRY TECHNICZNE
Powierzchnia domu
bez garażu
191,40 m2
Powierzchnia garażu 35,26 m2
Min. wymiary działki [i] 20,91x21,00 m
* po adaptacji [i] 18,91x21,00 m
Kubatura 1 158,26 m3
Powierzchnia zabudowy 163,26 m2
Powierzchnia użytkowa [i] 187,48 m2
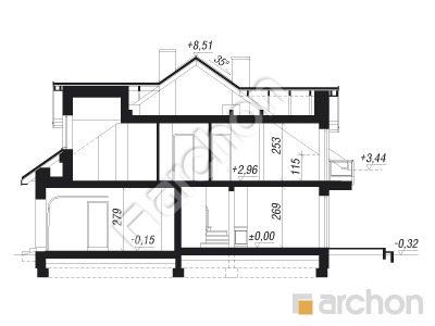
Wysokość 8,83 m
TECHNOLOGIA I KONSTRUKCJA:
ściany zewnetrzne: pustak ceramiczny Porotherm 25 cm, styropian 20 cm, tynk
strop: płyta żelbetowa
ścianka kolankowa: 115 cm
dach: dwuspadowy, nachylenie 35 st , więźba drewniana, dachówka ceramiczna



CENA PROJEKTU:

7 790,00 zł

zamów na archon.pl
podyskutuj o projekcie Dom pod miłorzębem (GR2M)
Dom pod miłorzębem (GR2M)
PARTER 119,36 (120,32)
1. Wiatrołap 5,69
2. Hol 5,09
3. Toaleta 1,44 (1,92)
4. Salon 21,79
5. Kuchnia 8,04
6. Garaż 17,63
7. Wiatrołap 5,69
8. Hol 5,09
9. Toaleta 1,44 (1,92)
10. Salon 21,79
11. Kuchnia 8,04
12. Garaż 17,63
Dom pod miłorzębem (GR2M)
PODDASZE 107,30 (116,92)
1. Hol i schody 10,46
2. Pokój 9,21 (10,41)
3. Pokój 12,35 (13,55)
4. Łazienka 6,94
5. Pokój {z garderobą} 12,73 (13,93)
6. Garderoba 1,96 (3,17)
7. Hol i schody 10,46
8. Pokój 9,21 (10,41)
9. Pokój 12,35 (13,55)
10. Łazienka 6,94
11. Pokój {z garderobą} 12,73 (13,93)
12. Garderoba 1,96 (3,17)
White
White

Porozmawiaj o projekcie

comments powered by Disqus