White
White

Projekt domu ARCHON+ Dom w aloesie 2

więcej o projekcie Dom w aloesie 2 na archon.pl »
Dom jednorodzinny z poddaszem użytkowym
garaż, strych, 5 pokoi, 1 kuchnia, 2 łazienki, kotłownia, garderoby, kominek,
PARAMETRY TECHNICZNE
Powierzchnia domu
bez kotłowni, garażu, strychu
124,27 m2
Powierzchnia kotłowni 8,84 m2
Powierzchnia garażu 25,05 m2
Powierzchnia strychu 12,26 m2
Min. wymiary działki [i] 23,00x19,12 m
* po adaptacji [i] 22,00x19,12 m
Kubatura 805,20 m3
Powierzchnia zabudowy 137,74 m2
Powierzchnia użytkowa [i] 122,57 m2
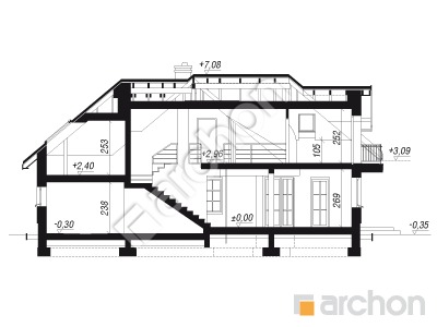
Wysokość 7,43 m
TECHNOLOGIA I KONSTRUKCJA:
ściany zewnetrzne: pustak ceramiczny Porotherm 25 cm, styropian 20 cm, tynk
strop: płyta żelbetowa
ścianka kolankowa: 105 cm
dach: czterospadowy, nachylenie 40 st , więźba drewniana, dachówka ceramiczna



CENA PROJEKTU:

5 500,00 zł

zamów na archon.pl
podyskutuj o projekcie Dom w aloesie 2
Dom w aloesie 2
PARTER 102,84 (105,72)
1. Wiatrołap 4,08
2. Hol 7,97
3. Pokój 8,89
4. Kuchnia 10,60
5. Salon + Jadalnia 32,87 (33,44)
6. Łazienka 4,54
7. Kotłownia 8,84
8. Garaż 25,05 (27,36)
Dom w aloesie 2
PODDASZE 67,58 (97,98)
1. Schody 5,36
2. Korytarz 9,80
3. Garderoba 1,70 (4,95)
4. Pokój {z garderobą} 9,82 (13,17)
5. Pokój 10,18 (16,38)
6. Pokój 10,54 (12,04)
7. Łazienka 7,92 (12,14)
8. Strych 12,26 (24,14)
White
White

Porozmawiaj o projekcie

comments powered by Disqus