White
White

Projekt domu ARCHON+ Dom w tamaryszkach 2 (G2N)

więcej o projekcie Dom w tamaryszkach 2 (G2N) na archon.pl »
Dom jednorodzinny parterowy z poddaszem użytkowym
garaż, 6 pokoi, 1 kuchnia, 3 łazienki, spiżarka, kotłownia, pralnia, garderoby, pomieszczenie gospodarcze, kominek,
PARAMETRY TECHNICZNE
Powierzchnia domu
bez kotłowni, garażu
172,82 m2
Powierzchnia kotłowni 7,55 m2
Powierzchnia garażu 34,23 m2
Min. wymiary działki [i] 24,12x19,12 m
* po adaptacji [i] 21,92x19,12 m
Kubatura 1 031,85 m3
Powierzchnia zabudowy 155,87 m2
Powierzchnia użytkowa [i] 154,11 m2
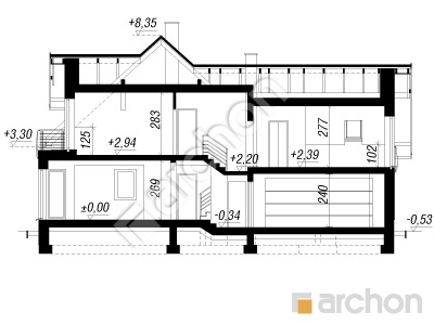
Wysokość 8,88 m
TECHNOLOGIA I KONSTRUKCJA:
ściany zewnetrzne: pustak ceramiczny Porotherm 25 cm, styropian 20 cm, tynk
strop: płyta żelbetowa
ścianka kolankowa: 125 cm
dach: dwuspadowy, nachylenie 42 st , I 35 st , więźba drewniana, dachówka ceramiczna



CENA PROJEKTU:

6 240,00 zł

zamów na archon.pl
podyskutuj o projekcie Dom w tamaryszkach 2 (G2N)
Dom w tamaryszkach 2 (G2N)
PARTER 118,32 (119,77)
1. Wiatrołap 3,12
2. Korytarz 3,54
3. Łazienka 4,12
4. Spiżarnia 1,69
5. Kuchnia 9,73
6. Salon 30,18
7. Hol 6,09
8. Schody 1,30
9. Pokój 9,31
10. Schowek 0,22 (1,67)
11. Pom. gospodarcze 7,24
12. Kotłownia 7,55
13. Garaż 34,23
Dom w tamaryszkach 2 (G2N)
PODDASZE 96,28 (115,27)
1. Hol 4,47 (4,47)
2. Pokój 9,52 (11,31)
3. Pokój 15,81 (17,56)
4. Pokój 17,68 (19,55)
5. Łazienka 9,63 (10,57)
6. Schody 3,57 (3,57)
7. Przedpokój 1,79 (1,79)
8. Pralnia 4,93 (8,87)
9. Łazienka 4,36 (6,73)
10. Pokój {z łazienką i garderobą} 19,89 (23,77)
11. Garderoba 4,63 (7,08)
White
White

Porozmawiaj o projekcie

comments powered by Disqus