White
White

Projekt domu ARCHON+ Dom w idaredach 2

więcej o projekcie Dom w idaredach 2 na archon.pl »
Dom jednorodzinny parterowy z poddaszem użytkowym
garaż, 6 pokoi, 1 kuchnia, 2 łazienki, kotłownia, pralnia, garderoby, kominek,
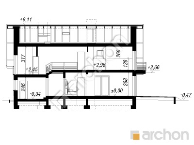
PARAMETRY TECHNICZNE
Powierzchnia domu
bez kotłowni, garażu
144,61 m2
Powierzchnia kotłowni 8,78 m2
Powierzchnia garażu 19,33 m2
Min. wymiary działki [i] 21,92x17,92 m
Kubatura 843,82 m3
Powierzchnia zabudowy 126,34 m2
Powierzchnia użytkowa [i] 132,94 m2
Wysokość 8,58 m
TECHNOLOGIA I KONSTRUKCJA:
ściany zewnetrzne: pustak ceramiczny Porotherm 25 cm, styropian 20 cm, tynk
strop: płyta żelbetowa
ścianka kolankowa: 128 cm
dach: dwuspadowy, nachylenie 40 st , więźba drewniana, dachówka ceramiczna



CENA PROJEKTU:

5 550,00 zł

zamów na archon.pl
podyskutuj o projekcie Dom w idaredach 2
Dom w idaredach 2
PARTER 96,85 (98,36)
1. Wiatrołap 5,64
2. Hol 5,26
3. Łazienka 3,78
4. Kuchnia 8,88
5. Salon + Jadalnia 29,17
6. Gabinet 11,59
7. Schody 4,42
8. Kotłownia 8,78
9. Garaż 19,33 (20,84)
Dom w idaredach 2
PODDASZE 75,87 (91,72)
1. Korytarz 2,59 (2,59)
2. Pokój 10,50 (11,22)
3. Pokój 9,38 (13,53)
4. Korytarz 6,82 (6,82)
5. Pralnia 3,28 (4,63)
6. Garderoba 2,77 (3,92)
7. Garderoba 2,81 (3,99)
8. Pokój {z garderobą} 10,90 (12,63)
9. Pokój {z garderobą} 14,11 (15,89)
10. Garderoba 2,81 (3,99)
11. Łazienka 9,90 (12,51)
White
White

Porozmawiaj o projekcie

comments powered by Disqus