White
White

Projekt domu ARCHON+ Dom w idaredach 5 (A)

więcej o projekcie Dom w idaredach 5 (A) na archon.pl »
Dom jednorodzinny parterowy z poddaszem użytkowym
garaż, 5 pokoi, 1 kuchnia, 2 łazienki, spiżarka, kotłownia, pralnia, kominek,
PARAMETRY TECHNICZNE
Powierzchnia domu
bez kotłowni, garażu
144,48 m2
Powierzchnia kotłowni 8,21 m2
Powierzchnia garażu 23,19 m2
Min. wymiary działki [i] 22,00x17,92 m
* po adaptacji [i] 21,00x17,92 m
Kubatura 851,30 m3
Powierzchnia zabudowy 128,00 m2
Powierzchnia użytkowa [i] 136,32 m2
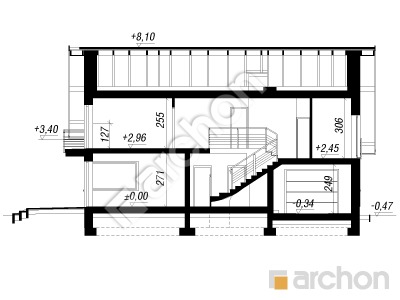
Wysokość 8,57 m
TECHNOLOGIA I KONSTRUKCJA:
ściany zewnetrzne: pustak ceramiczny Porotherm 25 cm, styropian 20 cm, tynk
strop: płyta żelbetowa
ścianka kolankowa: 127 cm
dach: dwuspadowy, nachylenie 40 st , więźba drewniana, dachówka ceramiczna



CENA PROJEKTU:

5 550,00 zł

zamów na archon.pl
podyskutuj o projekcie Dom w idaredach 5 (A)
Dom w idaredach 5 (A)
PARTER 94,75 (96,30)
1. Wiatrołap 3,28
2. Hol 5,87
3. Salon + Jadalnia 35,33
4. Kuchnia 11,51
5. Spiżarnia 2,07
6. Łazienka 3,64
7. Korytarz 1,65 (3,20)
8. Kotłownia 8,21
9. Garaż 23,19
Dom w idaredach 5 (A)
PODDASZE 81,13 (97,66)
1. Schody 7,14 (7,14)
2. Pokój 12,68 (13,62)
3. Pokój 11,47 (16,61)
4. Hol 7,18 (7,18)
5. Pralnia 6,09 (8,51)
6. Pokój 11,59 (14,40)
7. Pokój 15,76 (18,55)
8. Łazienka 9,22 (11,65)
White
White

Porozmawiaj o projekcie

comments powered by Disqus