White
White

Projekt domu ARCHON+ Dom w aurorach 3

więcej o projekcie Dom w aurorach 3 na archon.pl »
Dom jednorodzinny z poddaszem użytkowym
garaż, 5 pokoi, 1 kuchnia, 2 łazienki, spiżarka, kotłownia, pralnia, garderoby, kominek,
PARAMETRY TECHNICZNE
Powierzchnia domu
bez kotłowni, garażu
141,13 m2
Powierzchnia kotłowni 7,50 m2
Powierzchnia garażu 21,01 m2
Min. wymiary działki [i] 20,50x19,70 m
* po adaptacji [i] 19,50x19,70 m
Kubatura 827,82 m3
Powierzchnia zabudowy 122,29 m2
Powierzchnia użytkowa [i] 129,86 m2
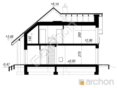
Wysokość 8,61 m
TECHNOLOGIA I KONSTRUKCJA:
ściany zewnetrzne: pustak ceramiczny Porotherm 25 cm, styropian 20 cm, tynk
strop: płyta żelbetowa
ścianka kolankowa: 140 cm
dach: dwuspadowy, nachylenie 40 st , więźba drewniana, dachówka ceramiczna



CENA PROJEKTU:

5 500,00 zł

zamów na archon.pl
podyskutuj o projekcie Dom w aurorach 3
Dom w aurorach 3
PARTER 90,41 (92,11)
1. Wiatrołap 6,75 (8,45)
2. Hol 4,10
3. Łazienka 2,36
4. Kuchnia 11,21
5. Spiżarnia 1,70
6. Salon + Jadalnia 35,78
7. Kotłownia 7,50
8. Garaż 21,01
Dom w aurorach 3
PODDASZE 79,23 (92,09)
1. Hol i schody 13,82 (13,82)
2. Pokój 11,66 (13,23)
3. Pokój 10,08 (11,93)
4. Pralnia 6,63 (8,00)
5. Pokój 10,72 (16,14)
6. Łazienka 8,79 (10,42)
7. Garderoba 2,94 (2,94)
8. Pokój {z garderobą} 14,59 (15,61)
White
White

Porozmawiaj o projekcie

comments powered by Disqus