White
White

Projekt domu ARCHON+ Dom w kortlandach 4 (G2)

więcej o projekcie Dom w kortlandach 4 (G2) na archon.pl »
Dom jednorodzinny z poddaszem użytkowym
garaż, strych, 6 pokoi, 1 kuchnia, 2 łazienki, spiżarka, kotłownia, pralnia, garderoby, kominek,
PARAMETRY TECHNICZNE
Powierzchnia domu
bez kotłowni, garażu, strychu
158,03 m2
Powierzchnia kotłowni 10,56 m2
Powierzchnia garażu 39,38 m2
Powierzchnia strychu 14,35 m2
Min. wymiary działki [i] 23,00x21,10 m
* po adaptacji [i] 22,00x21,10 m
Kubatura 1 117,04 m3
Powierzchnia zabudowy 168,72 m2
Powierzchnia użytkowa [i] 147,22 m2
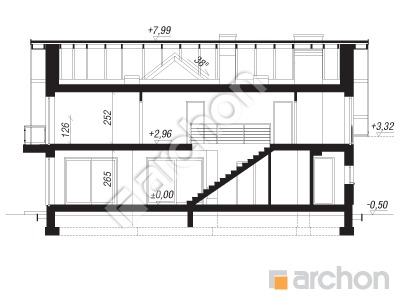
Wysokość 8,49 m
TECHNOLOGIA I KONSTRUKCJA:
ściany zewnetrzne: pustak ceramiczny Porotherm 25 cm, styropian 20 cm, tynk
strop: płyta żelbetowa
ścianka kolankowa: 126 cm
dach: dwuspadowy, nachylenie 38 st , więźba drewniana, dachówka ceramiczna



CENA PROJEKTU:

6 240,00 zł

zamów na archon.pl
podyskutuj o projekcie Dom w kortlandach 4 (G2)
Dom w kortlandach 4 (G2)
PARTER 126,59 (129,21)
1. Wiatrołap 6,77
2. Spiżarnia 1,90
3. Kuchnia 10,01
4. Salon + Jadalnia 38,00
5. Schody 4,02
6. Przedpokój 3,58 (6,20)
7. Pokój 8,77
8. Łazienka 3,60
9. Kotłownia 10,56
10. Garaż 39,38
Dom w kortlandach 4 (G2)
PODDASZE 95,73 (130,35)
1. Hol 12,46
2. Pokój 11,69 (13,84)
3. Pokój 12,96 (15,71)
4. Pokój 12,64 (17,28)
5. Pokój {z garderobą} 14,11
6. Garderoba 3,71 (4,99)
7. Łazienka 8,61 (11,27)
8. Pralnia 5,20
9. Strych ocieplony 14,35 (35,49)
White
White

Porozmawiaj o projekcie

comments powered by Disqus