White
White

Projekt domu ARCHON+ Dom w ambrozjach

więcej o projekcie Dom w ambrozjach na archon.pl »
Dom jednorodzinny z poddaszem użytkowym
garaż, 5 pokoi, 1 kuchnia, 2 łazienki, spiżarka, kotłownia, pralnia, garderoby, kominek,
PARAMETRY TECHNICZNE
Powierzchnia domu
bez kotłowni, garażu
137,02 m2
Powierzchnia kotłowni 4,53 m2
Powierzchnia garażu 18,37 m2
Min. wymiary działki [i] 20,30x18,20 m
* po adaptacji [i] 19,30x18,20 m
Kubatura 836,66 m3
Powierzchnia zabudowy 122,04 m2
Powierzchnia użytkowa [i] 126,01 m2
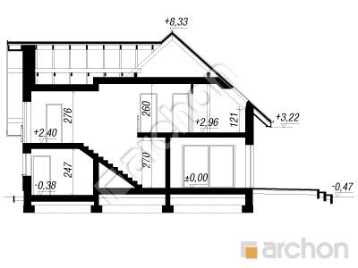
Wysokość 8,80 m
TECHNOLOGIA I KONSTRUKCJA:
ściany zewnetrzne: pustak ceramiczny Porotherm 25 cm, styropian 20 cm, tynk
strop: płyta żelbetowa
ścianka kolankowa: 121 cm
dach: dwuspadowy, nachylenie 42 st , więźba drewniana, dachówka ceramiczna



CENA PROJEKTU:

5 420,00 zł

zamów na archon.pl
podyskutuj o projekcie Dom w ambrozjach
Dom w ambrozjach
PARTER 80,49 (82,79)
1. Wiatrołap 5,89
2. Hol 4,25
3. Łazienka 2,43 (4,52)
4. Salon + Jadalnia 30,10
5. Kuchnia 13,02
6. Spiżarnia 1,90
7. Kotłownia 4,53
8. Garaż 18,37 (18,58)
Dom w ambrozjach
PODDASZE 79,43 (92,85)
1. Hol i schody 18,54 (18,54)
2. Pokój 12,78 (14,12)
3. Pokój 12,58 (15,01)
4. Garderoba 4,44 (5,81)
5. Pokój 10,27 (12,13)
6. Pokój 8,19 (9,72)
7. Pralnia 4,67 (7,12)
8. Łazienka 7,96 (10,40)
White
White

Porozmawiaj o projekcie

comments powered by Disqus