White
White

Projekt domu ARCHON+ Dom w rododendronach 5 (G2P)

więcej o projekcie Dom w rododendronach 5 (G2P) na archon.pl »
Dom jednorodzinny parterowy z poddaszem użytkowym
garaż, piwnica, 6 pokoi, 1 kuchnia, 2 łazienki, kotłownia, pralnia, garderoby, pomieszczenie gospodarcze, kominek,
PARAMETRY TECHNICZNE
Powierzchnia domu
bez garażu, piwnic
166,64 m2
Powierzchnia garażu 38,28 m2
Powierzchnia piwnic 68,58 m2
Min. wymiary działki [i] 24,12x18,22 m
* po adaptacji [i] 22,22x18,22 m
Kubatura 1 184,25 m3
Powierzchnia zabudowy 146,26 m2
Powierzchnia użytkowa [i] 152,71 m2
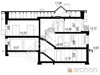
Wysokość 8,61 m
TECHNOLOGIA I KONSTRUKCJA:
ściany zewnetrzne: pustak ceramiczny Porotherm 25 cm, styropian 20 cm, tynk
strop: płyta żelbetowa
ścianka kolankowa: 105 cm
dach: dwuspadowy, nachylenie 40 st , więźba drewniana, dachówka ceramiczna



CENA PROJEKTU:

6 240,00 zł

zamów na archon.pl
podyskutuj o projekcie Dom w rododendronach 5 (G2P)
Dom w rododendronach 5 (G2P)
PIWNICA 68,58 (71,18)
1. Pom. gospodarcze 45,52 (48,12)
2. Kotłownia 9,24
3. Pralnia 13,82
Dom w rododendronach 5 (G2P)
PARTER 113,11
1. Wiatrołap 3,50
2. Hol 2,38
3. Kuchnia 10,20
4. Salon + Jadalnia 28,91
5. Pokój 13,92
6. Schody 4,87
7. Łazienka 6,62
8. Garaż 38,28
9. Pom. gospodarcze 4,43
Dom w rododendronach 5 (G2P)
PODDASZE 91,81 (112,11)
1. Hol i schody 9,24 (9,24)
2. Łazienka 7,77 (9,89)
3. Pokój 11,31 (14,21)
4. Pokój 17,98 (20,61)
5. Pokój 12,78 (15,75)
6. Pokój 23,23 (28,13)
7. Garderoba 4,76 (7,14)
8. Garderoba 4,74 (7,14)
White
White

Porozmawiaj o projekcie

comments powered by Disqus