White
White

Projekt domu ARCHON+ Dom w werbenach (N)

więcej o projekcie Dom w werbenach (N) na archon.pl »
Dom jednorodzinny z poddaszem użytkowym
garaż, 6 pokoi, 1 kuchnia, 2 łazienki, spiżarka, kotłownia, garderoby, pomieszczenie gospodarcze, kominek,
PARAMETRY TECHNICZNE
Powierzchnia domu
bez kotłowni, garażu
139,95 m2
Powierzchnia kotłowni 4,25 m2
Powierzchnia garażu 19,77 m2
Min. wymiary działki [i] 23,60x16,60 m
* po adaptacji [i] 22,60x16,60 m
Kubatura 794,10 m3
Powierzchnia zabudowy 126,21 m2
Powierzchnia użytkowa [i] 131,53 m2
Wysokość 8,47 m
TECHNOLOGIA I KONSTRUKCJA:
ściany zewnetrzne: cegła wapienno piaskowa SILKA 24 cm, styropian 20 cm, tynk
strop: płyta żelbetowa
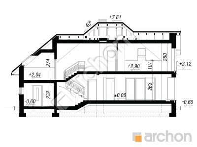
ścianka kolankowa: 107 cm
dach: czterospadowy, nachylenie 40 st , więźba drewniana, dachówka ceramiczna



CENA PROJEKTU:

5 500,00 zł

zamów na archon.pl
podyskutuj o projekcie Dom w werbenach (N)
Dom w werbenach (N)
PARTER 92,74 (93,75)
1. Wiatrołap 3,38
2. Hol 7,46
3. Spiżarnia 1,58
4. Kuchnia 11,51
5. Salon + Jadalnia 27,98
6. Łazienka 3,80
7. Kotłownia 4,25
8. Pom. gospodarcze 2,90 (3,91)
9. Pokój 10,11
10. Garaż 19,77
Dom w werbenach (N)
PODDASZE 71,23 (95,33)
1. Hol i schody 10,53 (10,53)
2. Pokój 18,22 (22,48)
3. Pokój 12,94 (17,15)
4. Pokój {z garderobą} 10,07 (12,01)
5. Garderoba 1,32 (3,65)
6. Pokój {z garderobą} 10,00 (14,52)
7. Garderoba 2,62 (5,12)
8. Łazienka 5,53 (9,87)
White
White

Porozmawiaj o projekcie

comments powered by Disqus