White
White

Projekt domu ARCHON+ Dom w muszkatach 2 (R2)

więcej o projekcie Dom w muszkatach 2 (R2) na archon.pl »
Dom dwurodzinny (jednorodzinny dwulokalowy) z poddaszem użytkowym
garaż, 10 pokoi, 4 łazienki, spiżarka, WC, kotłownia,
PARAMETRY TECHNICZNE
Powierzchnia domu
bez kotłowni, garażu
203,66 m2
Powierzchnia kotłowni 14,84 m2
Powierzchnia garażu 40,44 m2
Min. wymiary działki [i] 26,32x20,00 m
* po adaptacji [i] 24,32x20,00 m
Kubatura 1 237,48 m3
Powierzchnia zabudowy 192,21 m2
Powierzchnia użytkowa [i] 200,72 m2
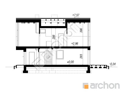
Wysokość 7,91 m
TECHNOLOGIA I KONSTRUKCJA:
ściany zewnetrzne: bloczek z betonu komórkowego H+H 24 cm, styropian 20 cm, tynk
strop: płyta żelbetowa
ścianka kolankowa: 163 cm
dach: dwuspadowy, nachylenie 42 st , I 35 st , więźba drewniana, blacha



CENA PROJEKTU:

8 440,00 zł

zamów na archon.pl
podyskutuj o projekcie Dom w muszkatach 2 (R2)
Dom w muszkatach 2 (R2)
PARTER 132,28 (136,84)
1. Wiatrołap 3,72
2. Hol 4,03
3. Kotłownia 7,42
4. Toaleta 1,23
5. Spiżarnia 1,47 (3,75)
6. Salon z aneksem kuchennym 28,05
7. Garaż 20,22
8. Wiatrołap 3,72
9. Hol 4,03
10. Kotłownia 7,42
11. Toaleta 1,23
12. Spiżarnia 1,47 (3,75)
13. Salon z aneksem kuchennym 28,05
14. Garaż 20,22
Dom w muszkatach 2 (R2)
PODDASZE 126,66 (150,20)
1. Schody 4,07 (4,16)
2. Hol 8,30 (8,50)
3. Łazienka 6,07 (6,76)
4. Pokój 15,46 (17,54)
5. Pokój {z łazienką} 10,83 (14,37)
6. Łazienka 3,65 (6,33)
7. Pokój 7,53 (8,97)
8. Pokój 7,42 (8,47)
9. Schody 4,07 (4,16)
10. Hol 8,30 (8,50)
11. Łazienka 6,07 (6,76)
12. Pokój 15,46 (17,54)
13. Pokój {z łazienką} 10,83 (14,37)
14. Łazienka 3,65 (6,33)
15. Pokój 7,53 (8,97)
16. Pokój 7,42 (8,47)
White
White

Porozmawiaj o projekcie

comments powered by Disqus