White
White

Projekt domu ARCHON+ Dom w dracenach 2 (G2)

więcej o projekcie Dom w dracenach 2 (G2) na archon.pl »
Dom jednorodzinny parterowy
garaż, 5 pokoi, 1 kuchnia, 2 łazienki, spiżarka, kotłownia, garderoby, kominek,
PARAMETRY TECHNICZNE
Powierzchnia domu
bez kotłowni, garażu
148,54 m2
Powierzchnia kotłowni 5,18 m2
Powierzchnia garażu 36,12 m2
Min. wymiary działki [i] 29,60x27,60 m
* po adaptacji [i] 27,60x27,60 m
Kubatura 1 296,25 m3
Powierzchnia zabudowy 268,93 m2
Powierzchnia użytkowa [i] 135,60 m2
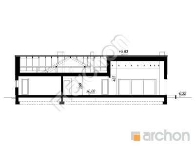
Wysokość 5,95 m
TECHNOLOGIA I KONSTRUKCJA:
ściany zewnetrzne: bloczek z betonu komórkowego H+H 24 cm, styropian 20 cm, tynk
strop: płyta żelbetowa
dach: dwuspadowy, nachylenie 30 st , więźba drewniana, dachówka ceramiczna



CENA PROJEKTU:

5 850,00 zł

zamów na archon.pl
podyskutuj o projekcie Dom w dracenach 2 (G2)
Dom w dracenach 2 (G2)
PARTER 189,84
1. Wiatrołap 5,34
2. Hol 19,14
3. Spiżarnia 4,43
4. Kuchnia 11,74
5. Salon + Jadalnia 41,45
6. Łazienka 7,40
7. Pokój 11,91
8. Pokój 11,91
9. Pokój {z łazienką i garderobą} 13,98
10. Garderoba 4,56
11. Łazienka 4,36
12. Gabinet 8,37
13. Garderoba 3,95
14. Kotłownia 5,18
15. Garaż 36,12
White
White

Porozmawiaj o projekcie

comments powered by Disqus