White
White

Projekt domu ARCHON+ Dom w amarylisach 3

więcej o projekcie Dom w amarylisach 3 na archon.pl »
Dom jednorodzinny z poddaszem użytkowym
garaż, 5 pokoi, 1 kuchnia, 2 łazienki, kotłownia, garderoby, kominek,
PARAMETRY TECHNICZNE
Powierzchnia domu
bez kotłowni, garażu
111,39 m2
Powierzchnia kotłowni 4,15 m2
Powierzchnia garażu 18,84 m2
Min. wymiary działki [i] 22,12x16,92 m
* po adaptacji [i] 21,12x16,92 m
Kubatura 701,30 m3
Powierzchnia zabudowy 113,72 m2
Powierzchnia użytkowa [i] 107,47 m2
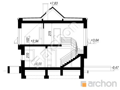
Wysokość 8,30 m
TECHNOLOGIA I KONSTRUKCJA:
ściany zewnetrzne: pustak ceramiczny Porotherm 25 cm, styropian 20 cm, tynk
strop: płyta żelbetowa
ścianka kolankowa: 102 cm
dach: dwuspadowy, nachylenie 42 st , więźba drewniana, blacha



CENA PROJEKTU:

4 990,00 zł

zamów na archon.pl
podyskutuj o projekcie Dom w amarylisach 3
Dom w amarylisach 3
PARTER 80,57 (83,12)
1. Wiatrołap 5,27
2. Hol 3,06
3. Kuchnia i jadalnia 15,95
4. Salon 21,86 (24,41)
5. Pokój 8,71
6. Łazienka 2,73
7. Kotłownia 4,15
8. Garaż 18,84
Dom w amarylisach 3
PODDASZE 53,81 (66,58)
1. Hol i schody 9,59 (9,98)
2. Pokój 12,14 (14,78)
3. Pokój 12,37 (15,51)
4. Pokój {z garderobą} 9,99 (13,13)
5. Garderoba 3,92 (5,32)
6. Łazienka 5,80 (7,86)
White
White

Porozmawiaj o projekcie

comments powered by Disqus