White
White

Projekt domu ARCHON+ Dom w mirabilisach (G2)

więcej o projekcie Dom w mirabilisach (G2) na archon.pl »
Dom jednorodzinny z poddaszem użytkowym
garaż, 5 pokoi, 1 kuchnia, 2 łazienki, spiżarka, WC, kotłownia, pralnia, garderoby, antersola, kominek,
PARAMETRY TECHNICZNE
Powierzchnia domu
bez kotłowni, garażu
147,21 m2
Powierzchnia kotłowni 7,44 m2
Powierzchnia garażu 36,96 m2
Min. wymiary działki [i] 22,00x21,00 m
* po adaptacji [i] 21,00x21,00 m
Kubatura 945,98 m3
Powierzchnia zabudowy 146,42 m2
Powierzchnia użytkowa [i] 135,01 m2
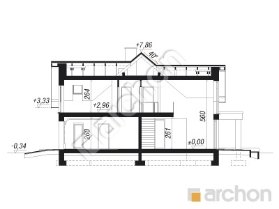
Wysokość 8,20 m
TECHNOLOGIA I KONSTRUKCJA:
ściany zewnetrzne: bloczek z betonu komórkowego H+H 24 cm, styropian 20 cm, tynk
strop: płyta żelbetowa
ścianka kolankowa: 119 cm
dach: dwuspadowy, nachylenie 40 st , więźba drewniana, dachówka ceramiczna



CENA PROJEKTU:

5 850,00 zł

zamów na archon.pl
podyskutuj o projekcie Dom w mirabilisach (G2)
Dom w mirabilisach (G2)
PARTER 112,34 (115,17)
1. Wiatrołap 4,52
2. Toaleta 1,94
3. Hol 3,39
4. Spiżarnia 1,80
5. Kuchnia 10,49
6. Salon + Jadalnia 45,80 (48,63)
7. Kotłownia 7,44
8. Garaż 36,96
Dom w mirabilisach (G2)
PODDASZE 79,27 (96,31)
1. Schody 4,02 (4,02)
2. Antresola 11,39 (12,42)
3. Pralnia 3,90 (5,62)
4. Przedpokój 3,92 (3,92)
5. Łazienka 6,26 (6,26)
6. Pokój 8,43 (11,94)
7. Pokój 8,50 (12,01)
8. Garderoba 2,29 (2,29)
9. Pokój 9,60 (11,82)
10. Łazienka 3,68 (4,74)
11. Garderoba 4,21 (5,43)
12. Pokój {z łazienką i garderobą} 13,07 (15,84)
White
White

Porozmawiaj o projekcie

comments powered by Disqus