White
White

Projekt domu ARCHON+ Dom w koniczynce

więcej o projekcie Dom w koniczynce na archon.pl »
Dom jednorodzinny parterowy z poddaszem użytkowym
5 pokoi, 1 kuchnia, 2 łazienki, spiżarka, kotłownia, garderoby, pomieszczenie gospodarcze, kominek,
PARAMETRY TECHNICZNE
Powierzchnia domu
bez kotłowni
123,26 m2
Powierzchnia kotłowni 7,31 m2
Min. wymiary działki [i] 20,12x17,12 m
* po adaptacji [i] 19,12x17,12 m
Kubatura 662,20 m3
Powierzchnia zabudowy 105,76 m2
Powierzchnia użytkowa [i] 117,91 m2
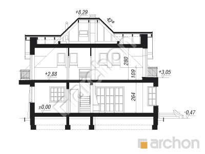
Wysokość 8,76 m
TECHNOLOGIA I KONSTRUKCJA:
ściany zewnetrzne: pustak ceramiczny Porotherm 25 cm, styropian 20 cm, tynk
strop: płyta żelbetowa
ścianka kolankowa: 109 cm
dach: czterospadowy, nachylenie 42 st , więźba drewniana, dachówka ceramiczna



CENA PROJEKTU:

4 990,00 zł

zamów na archon.pl
podyskutuj o projekcie Dom w koniczynce
Dom w koniczynce
PARTER 70,52 (74,62)
1. Wiatrołap 4,07
2. Kotłownia 7,31
3. Hol 4,92
4. Łazienka 4,71
5. Pokój 11,10
6. Pom. gospodarcze 0,92 (5,02)
7. Salon 27,92
8. Kuchnia 8,16
9. Spiżarnia 1,41
Dom w koniczynce
PODDASZE 60,05 (78,11)
1. Schody 5,63 (5,63)
2. Hol 4,35 (4,35)
3. Pokój 14,21 (19,15)
4. Pokój 14,77 (19,37)
5. Łazienka 5,89 (7,53)
6. Garderoba 3,02 (6,06)
7. Pokój {z garderobą} 12,18 (16,02)
White
White

Porozmawiaj o projekcie

comments powered by Disqus