White
White

Projekt domu ARCHON+ Dom w aurorach 17 (G2E)

więcej o projekcie Dom w aurorach 17 (G2E) na archon.pl »
Dom jednorodzinny z poddaszem użytkowym
garaż, 5 pokoi, 1 kuchnia, 2 łazienki, spiżarka, kotłownia, pralnia, garderoby, antersola, kominek,
PARAMETRY TECHNICZNE
Powierzchnia domu
bez kotłowni, garażu
143,67 m2
Powierzchnia kotłowni 10,83 m2
Powierzchnia garażu 34,93 m2
Min. wymiary działki [i] 23,50x19,80 m
* po adaptacji [i] 23,50x19,30 m
Kubatura 977,59 m3
Powierzchnia zabudowy 159,35 m2
Powierzchnia użytkowa [i] 128,11 m2
Wysokość 8,48 m
TECHNOLOGIA I KONSTRUKCJA:
ściany zewnetrzne: pustak ceramiczny Porotherm 25 cm, styropian 20 cm, tynk
strop: płyta żelbetowa
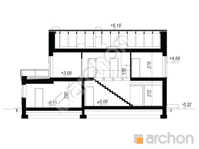
ścianka kolankowa: 130 cm
dach: dwuspadowy, nachylenie 37 st , więźba drewniana, blacha



CENA PROJEKTU:

5 950,00 zł

zamów na archon.pl
podyskutuj o projekcie Dom w aurorach 17 (G2E)
Dom w aurorach 17 (G2E)
PARTER 122,19 (124,76)
1. Wiatrołap 3,38
2. Hol 10,98 (13,55)
3. Łazienka 2,92
4. Spiżarnia 1,52
5. Kuchnia 10,30
6. Salon + Jadalnia 29,51
7. Pokój 17,82
8. Garaż 34,93
9. Kotłownia 10,83
Dom w aurorach 17 (G2E)
PODDASZE 67,24 (78,96)
1. Schody 4,10
2. Korytarz 12,48
3. Pokój 10,09 (11,99)
4. Pokój 9,94 (11,84)
5. Pralnia 4,85 (6,20)
6. Garderoba 4,78 (6,10)
7. Pokój {z garderobą} 10,89 (13,00)
8. Garderoba 4,41 (5,66)
9. Łazienka 5,70 (7,59)
White
White

Porozmawiaj o projekcie

comments powered by Disqus