White
White

Projekt domu ARCHON+ Dom w morelach (N)

więcej o projekcie Dom w morelach (N) na archon.pl »
Dom jednorodzinny parterowy z poddaszem użytkowym
garaż, 6 pokoi, 1 kuchnia, 2 łazienki, kotłownia, garderoby, pomieszczenie gospodarcze, kominek,
PARAMETRY TECHNICZNE
Powierzchnia domu
bez kotłowni, garażu
124,40 m2
Powierzchnia kotłowni 5,67 m2
Powierzchnia garażu 19,64 m2
Min. wymiary działki [i] 20,12x18,62 m
* po adaptacji [i] 19,12x18,62 m
Kubatura 741,43 m3
Powierzchnia zabudowy 114,53 m2
Powierzchnia użytkowa [i] 113,79 m2
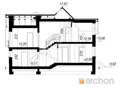
Wysokość 8,49 m
TECHNOLOGIA I KONSTRUKCJA:
ściany zewnetrzne: pustak ceramiczny Porotherm 25 cm, styropian 20 cm, tynk
strop: płyta żelbetowa
ścianka kolankowa: 107 cm
dach: dwuspadowy, nachylenie 45 st , I 40 st , więźba drewniana, dachówka ceramiczna



CENA PROJEKTU:

5 100,00 zł

zamów na archon.pl
podyskutuj o projekcie Dom w morelach (N)
Dom w morelach (N)
PARTER 83,40 (85,04)
1. Wiatrołap 2,89
2. Hol 6,06
3. Gabinet 7,98
4. Łazienka 4,53
5. Kuchnia 7,68
6. Salon + Jadalnia 25,78
7. Pom. gospodarcze 3,17 (4,81)
8. Garaż 19,64
9. Kotłownia 5,67
Dom w morelach (N)
PODDASZE 66,31 (85,73)
1. Schody 4,81 (4,81)
2. Hol 5,32 (5,32)
3. Pokój 9,65 (11,97)
4. Pokój 8,25 (11,08)
5. Łazienka 5,08 (6,64)
6. Pokój {z garderobą} 12,54 (14,87)
7. Garderoba 3,32 (5,48)
8. Pokój {z garderobą} 13,22 (17,33)
9. Garderoba 4,12 (8,23)
White
White

Porozmawiaj o projekcie

comments powered by Disqus