White
White

Projekt domu ARCHON+ Dom w perłówce (N)

więcej o projekcie Dom w perłówce (N) na archon.pl »
Dom jednorodzinny parterowy z poddaszem użytkowym
garaż, 4 pokoje, 1 kuchnia, 2 łazienki, kotłownia, garderoby, pomieszczenie gospodarcze, kominek,
PARAMETRY TECHNICZNE
Powierzchnia domu
bez kotłowni, garażu
95,28 m2
Powierzchnia kotłowni 5,44 m2
Powierzchnia garażu 17,91 m2
Min. wymiary działki [i] 21,22x15,52 m
* po adaptacji [i] 19,02x15,52 m
Kubatura 594,71 m3
Powierzchnia zabudowy 91,86 m2
Powierzchnia użytkowa [i] 91,24 m2
Wysokość 8,09 m
TECHNOLOGIA I KONSTRUKCJA:
ściany zewnetrzne: pustak ceramiczny Porotherm 25 cm, styropian 20 cm, tynk
strop: płyta żelbetowa
ścianka kolankowa: 113 cm
dach: dwuspadowy, nachylenie 40 st , więźba drewniana, dachówka ceramiczna



CENA PROJEKTU:

4 790,00 zł

zamów na archon.pl
podyskutuj o projekcie Dom w perłówce (N)
Dom w perłówce (N)
PARTER 65,56 (65,93)
1. Wiatrołap 2,41
2. Hol 3,91
3. Łazienka 3,52
4. Garderoba 2,17 (2,54)
5. Garaż 17,91
6. Kotłownia 5,44
7. Salon + Jadalnia 21,84
8. Kuchnia 8,36
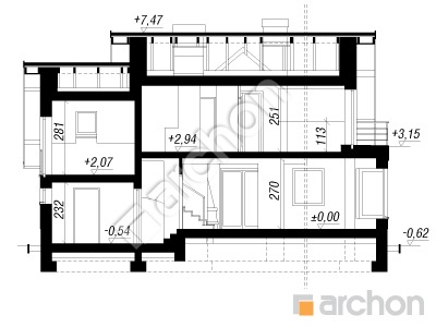
Dom w perłówce (N)
PODDASZE 53,07 (65,64)
1. Hol i schody 7,82 (8,37)
2. Pom. gospodarcze 1,87 (3,81)
3. Pokój 12,20 (14,12)
4. Pokój 11,91 (13,83)
5. Łazienka 5,66 (7,60)
6. Pokój 13,61 (17,91)
White
White

Porozmawiaj o projekcie

comments powered by Disqus