White
White

Projekt domu ARCHON+ Dom w idaredach 5 (T)

więcej o projekcie Dom w idaredach 5 (T) na archon.pl »
Dom jednorodzinny parterowy z poddaszem użytkowym
garaż, 5 pokoi, 1 kuchnia, 2 łazienki, spiżarka, kotłownia, pralnia, kominek,
PARAMETRY TECHNICZNE
Powierzchnia domu
bez kotłowni, garażu
137,49 m2
Powierzchnia kotłowni 8,21 m2
Powierzchnia garażu 23,19 m2
Min. wymiary działki [i] 21,50x17,92 m
* po adaptacji [i] 20,50x17,92 m
Kubatura 834,41 m3
Powierzchnia zabudowy 123,68 m2
Powierzchnia użytkowa [i] 129,33 m2
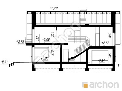
Wysokość 8,57 m
TECHNOLOGIA I KONSTRUKCJA:
ściany zewnetrzne: pustak ceramiczny Porotherm 25 cm, styropian 20 cm, tynk
strop: gęstożebrowy Teriva
ścianka kolankowa: 127 cm
dach: dwuspadowy, nachylenie 40 st , więźba drewniana, dachówka ceramiczna



CENA PROJEKTU:

5 500,00 zł

zamów na archon.pl
podyskutuj o projekcie Dom w idaredach 5 (T)
Dom w idaredach 5 (T)
PARTER 90,91 (92,46)
1. Wiatrołap 3,28
2. Hol 5,87
3. Salon + Jadalnia 31,49
4. Kuchnia 11,51
5. Spiżarnia 2,07
6. Łazienka 3,64
7. Korytarz 1,65 (3,20)
8. Kotłownia 8,21
9. Garaż 23,19
Dom w idaredach 5 (T)
PODDASZE 77,98 (93,90)
1. Schody 7,14 (7,14)
2. Pokój 12,68 (13,62)
3. Pokój 11,47 (16,61)
4. Hol 7,18 (7,18)
5. Pralnia 6,09 (8,51)
6. Pokój 10,26 (12,76)
7. Pokój 13,94 (16,43)
8. Łazienka 9,22 (11,65)
White
White

Porozmawiaj o projekcie

comments powered by Disqus