White
White

Projekt domu ARCHON+ Dom w tymianku 7

więcej o projekcie Dom w tymianku 7 na archon.pl »
Dom jednorodzinny z poddaszem użytkowym
garaż, 5 pokoi, 1 kuchnia, 2 łazienki, spiżarka, kotłownia, pralnia, garderoby, kominek,
PARAMETRY TECHNICZNE
Powierzchnia domu
bez kotłowni, garażu
144,39 m2
Powierzchnia kotłowni 5,38 m2
Powierzchnia garażu 18,32 m2
Min. wymiary działki [i] 19,44x20,10 m
* po adaptacji [i] 18,34x20,10 m
Kubatura 836,65 m3
Powierzchnia zabudowy 128,76 m2
Powierzchnia użytkowa [i] 132,30 m2
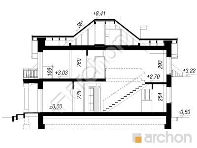
Wysokość 8,91 m
TECHNOLOGIA I KONSTRUKCJA:
ściany zewnetrzne: pustak ceramiczny Porotherm 25 cm, styropian 20 cm, tynk
strop: płyta żelbetowa
ścianka kolankowa: 109 cm
dach: czterospadowy, nachylenie 38 st , więźba drewniana, dachówka ceramiczna



CENA PROJEKTU:

5 500,00 zł

zamów na archon.pl
podyskutuj o projekcie Dom w tymianku 7
Dom w tymianku 7
PARTER 95,30 (97,61)
1. Wiatrołap 4,95
2. Hol 10,46 (12,77)
3. Salon 30,80
4. Kuchnia 11,53
5. Spiżarnia 1,20
6. Łazienka 3,55
7. Pokój 9,11
8. Kotłownia 5,38
9. Garaż 18,32
Dom w tymianku 7
PODDASZE 72,79 (97,27)
1. Schody 7,42
2. Hol 7,32
3. Pralnia 6,96 (12,09)
4. Łazienka 6,54 (9,49)
5. Pokój 12,68 (18,11)
6. Pokój 12,53 (17,92)
7. Pokój {z garderobą} 15,41 (16,64)
8. Garderoba 3,93 (8,28)
White
White

Porozmawiaj o projekcie

comments powered by Disqus