White
White

Projekt domu ARCHON+ Dom w rukoli (G2N)

więcej o projekcie Dom w rukoli (G2N) na archon.pl »
Dom jednorodzinny parterowy z poddaszem użytkowym
garaż, 5 pokoi, 1 kuchnia, 2 łazienki, kotłownia, garderoby, pomieszczenie gospodarcze, kominek,
PARAMETRY TECHNICZNE
Powierzchnia domu
bez kotłowni, garażu
122,27 m2
Powierzchnia kotłowni 7,70 m2
Powierzchnia garażu 35,52 m2
Min. wymiary działki [i] 20,32x21,77 m
* po adaptacji [i] 19,37x20,77 m
Kubatura 823,96 m3
Powierzchnia zabudowy 141,39 m2
Powierzchnia użytkowa [i] 107,38 m2
Wysokość 8,38 m
TECHNOLOGIA I KONSTRUKCJA:
ściany zewnetrzne: pustak ceramiczny Porotherm 25 cm, styropian 20 cm, tynk
strop: płyta żelbetowa
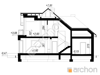
ścianka kolankowa: 107 cm
dach: czterospadowy, nachylenie 40 st , więźba drewniana, dachówka ceramiczna



CENA PROJEKTU:

5 500,00 zł

zamów na archon.pl
podyskutuj o projekcie Dom w rukoli (G2N)
Dom w rukoli (G2N)
PARTER 104,14 (104,79)
1. Wiatrołap 4,82
2. Kuchnia 8,41
3. Salon + Jadalnia 30,08
4. Pokój 10,71
5. Łazienka 3,41 (4,06)
6. Korytarz 3,49
7. Garaż 35,52
8. Kotłownia 7,70
Dom w rukoli (G2N)
PODDASZE 61,35 (104,42)
1. Schody 3,89 (3,89)
2. Hol 5,16 (5,16)
3. Pokój 10,79 (13,31)
4. Pokój 9,63 (13,55)
5. Pokój {z garderobą} 10,24 (14,51)
6. Garderoba 3,72 (5,22)
7. Łazienka 6,75 (11,87)
8. Pom. gospodarcze 11,17 (36,91)
White
White

Porozmawiaj o projekcie

comments powered by Disqus