White
White

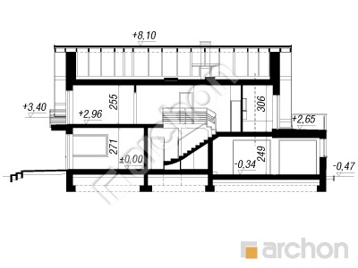
Projekt domu ARCHON+ Dom w idaredach 6 (G2)

więcej o projekcie Dom w idaredach 6 (G2) na archon.pl »
Dom jednorodzinny parterowy z poddaszem użytkowym
garaż, 5 pokoi, 1 kuchnia, 2 łazienki, spiżarka, kotłownia, pralnia, kominek,
PARAMETRY TECHNICZNE
Powierzchnia domu
bez kotłowni, garażu
145,18 m2
Powierzchnia kotłowni 16,44 m2
Powierzchnia garażu 41,24 m2
Min. wymiary działki [i] 25,05x17,92 m
* po adaptacji [i] 24,05x17,92 m
Kubatura 975,03 m3
Powierzchnia zabudowy 158,37 m2
Powierzchnia użytkowa [i] 136,67 m2
Wysokość 8,57 m
TECHNOLOGIA I KONSTRUKCJA:
ściany zewnetrzne: pustak ceramiczny Porotherm 25 cm, styropian 20 cm, tynk
strop: płyta żelbetowa
ścianka kolankowa: 127 cm
dach: dwuspadowy, nachylenie 40 st , więźba drewniana, dachówka ceramiczna



CENA PROJEKTU:

5 850,00 zł

zamów na archon.pl
podyskutuj o projekcie Dom w idaredach 6 (G2)
Dom w idaredach 6 (G2)
PARTER 121,65 (123,32)
1. Wiatrołap 7,22
2. Hol 4,21
3. Salon + Jadalnia 35,33
4. Kuchnia 11,51
5. Spiżarnia 2,39
6. Łazienka 3,31 (4,98)
7. Kotłownia 16,44
8. Garaż 41,24
Dom w idaredach 6 (G2)
PODDASZE 81,21 (97,74)
1. Schody 6,75 (6,75)
2. Pokój 12,86 (13,80)
3. Pokój 11,62 (16,76)
4. Hol 7,29 (7,29)
5. Pralnia 6,12 (8,54)
6. Pokój 11,59 (14,40)
7. Pokój 15,76 (18,55)
8. Łazienka 9,22 (11,65)
White
White

Porozmawiaj o projekcie

comments powered by Disqus