White
White

Projekt domu ARCHON+ Dom w orliczkach (P)

więcej o projekcie Dom w orliczkach (P) na archon.pl »
Dom jednorodzinny parterowy z poddaszem użytkowym
garaż, piwnica, 6 pokoi, 1 kuchnia, 2 łazienki, spiżarka, kotłownia, pralnia, garderoby, pomieszczenie gospodarcze, kominek,
PARAMETRY TECHNICZNE
Powierzchnia domu
bez garażu, piwnic
146,11 m2
Powierzchnia garażu 20,29 m2
Powierzchnia piwnic 62,60 m2
Min. wymiary działki [i] 20,50x18,80 m
* po adaptacji [i] 18,50x18,80 m
Kubatura 1 086,50 m3
Powierzchnia zabudowy 129,09 m2
Powierzchnia użytkowa [i] 136,08 m2
Wysokość 8,80 m
TECHNOLOGIA I KONSTRUKCJA:
ściany zewnetrzne: pustak ceramiczny Porotherm 25 cm, styropian 20 cm, tynk
strop: płyta żelbetowa
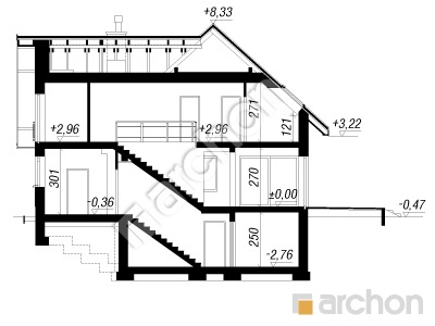
ścianka kolankowa: 121 cm
dach: dwuspadowy, nachylenie 42 st , więźba drewniana, dachówka ceramiczna



CENA PROJEKTU:

5 850,00 zł

zamów na archon.pl
podyskutuj o projekcie Dom w orliczkach (P)
Dom w orliczkach (P)
PIWNICA 62,60 (65,30)
1. Schody 3,63
2. Kotłownia 21,94
3. Spiżarnia 12,03
4. Pralnia 10,56
5. Pom. gospodarcze 14,44 (17,14)
Dom w orliczkach (P)
PARTER 85,89
1. Wiatrołap 6,46
2. Hol 4,17
3. Łazienka 2,71
4. Kuchnia 14,59
5. Salon + Jadalnia 31,27
6. Pom. gospodarcze 6,40
7. Garaż 20,29
Dom w orliczkach (P)
PODDASZE 80,51 (99,43)
1. Schody 3,84 (3,84)
2. Hol 11,71 (11,71)
3. Pokój 12,72 (14,28)
4. Pokój 11,26 (13,58)
5. Garderoba 3,63 (5,01)
6. Pokój 10,02 (12,35)
7. Pokój 13,44 (15,13)
8. Gabinet 6,46 (11,32)
9. Łazienka 7,43 (12,21)
White
White

Porozmawiaj o projekcie

comments powered by Disqus